都島楠風/3階 29.77坪 物件コード:J104103
- 電話で取り急ぎ物件情報を聞く
- 0120-366-200
- 物件コードを電話でお伝えください
物件コード:J104103


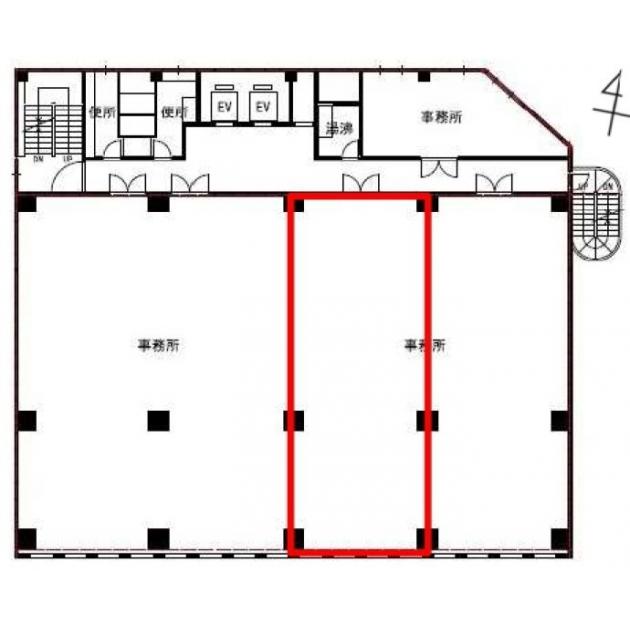
間取り図
おすすめポイント

- 地下鉄谷町線『都島』駅3番出口から徒歩1分の駅近物件。大通りに面しており、8階建てのビルなので視認性も高いです。基準階面積は100坪以上あり、約30坪程の貸室にも分割可能となっております。
ストリートビューを表示 ▼
- この物件の賃料の価格帯(共益費込)
- この部屋は成約済みです
都島楠風のその他の募集階
|
|
賃料はこの物件の価格帯を表示しています。詳しい情報は電話・メールでお問い合わせください!
物件概要
| 物件名 | 都島楠風 | ||
|---|---|---|---|
| 住所 | 大阪府都島区都島本通1丁目7番19号 | ||
| 構造 (規模) | 鉄骨鉄筋コンクリート造地上8階建 | ||
| 坪数 | 29.77坪 | 築年月 | 1974年5月 |
| 階数 | 3階 | 空調タイプ | 個別 |
| 保証金 | - | ||
| 敷金 | - | 礼金 | - |
| 沿線・最寄駅 |
地下鉄谷町線 都島駅 徒歩1分 (都島駅の賃貸事務所) JR大阪環状線 桜ノ宮駅 徒歩11分 (桜ノ宮駅の賃貸事務所) |
||
| 設備詳細 |
|
||
| EV基数 | 2基 | 人荷EV基数 | - |
| こだわり条件 |
|
||
| 備考 | ・駅近 ・大通り沿い ・空中店舗相談可能 |
||
| アクセス | 新大阪駅まで電車19分 大阪駅梅田駅まで電車13分 関西空港まで電車73分、車48分 伊丹空港まで車25分 高速入口:阪神高速12号守口線長柄入口 |
||
この物件の募集フロア
都島楠風
- この物件へのお問い合わせはこちら


〒541-0048
大阪市中央区瓦町3丁目4番3号
瓦町公洋ビル6階
TEL:06-6231-4600
FAX:06-6231-4630
- 電話で取り急ぎ物件情報を聞く

- 物件コード:J104103
- 物件コードを電話でお伝えください
類似物件のご紹介
「都島楠風」とエリア、賃料、広さが類似した物件をご紹介しております。
大阪京橋高橋(大阪京橋)
- 大阪府大阪市都島区東野田町1丁目20番5号
- 24.2坪(80.00m²)
- @8,001円/坪
~@12,000円/坪 -
地下鉄長堀鶴見緑地線 京橋駅 徒歩4分
JR大阪環状線 京橋駅 徒歩5分
大阪京橋高橋(大阪京橋)
- 大阪府大阪市都島区東野田町1丁目20番5号
- 24.2坪(80.00m²)
- @8,001円/坪
~@12,000円/坪 -
地下鉄長堀鶴見緑地線 京橋駅 徒歩4分
JR大阪環状線 京橋駅 徒歩5分
ルーナメゾン
- 大阪府大阪市都島区東野田町1丁目18番15号
- 26.74坪(88.40m²)
- @8,001円/坪
~@12,000円/坪 -
地下鉄長堀鶴見緑地線 京橋駅 徒歩3分
京阪線(本線・中之島線) 京橋駅 徒歩5分






