住友ビルディング第4号館/1階 30.19坪 物件コード:A101408
- 電話で取り急ぎ物件情報を聞く
- 0120-366-200
- 物件コードを電話でお伝えください
物件コード:A101408


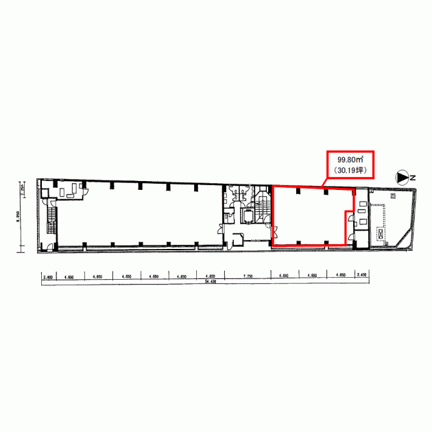
間取り図
おすすめポイント

- 住友ビルディング4号館は大手商社所有のビルで基準階面積119坪の大型オフィスビルです。2007年にリニューアル済み。重厚なファサードは来訪者に歴史と風格ある印象を与えます。優良企業多数入居。住友ビルディング2号館の食堂や貸会議室などの設備が利用可能です。淀屋橋駅から徒歩3分、肥後橋駅から徒歩2分の好立地ビル。
ストリートビューを表示 ▼
- この物件の賃料の価格帯(共益費込)
- この部屋は成約済みです
住友ビルディング第4号館のその他の募集階
|
|
賃料はこの物件の価格帯を表示しています。詳しい情報は電話・メールでお問い合わせください!
物件概要
| 物件名 | 住友ビルディング第4号館 | ||
|---|---|---|---|
| 住所 | 大阪府大阪市中央区北浜4丁目8番4号 | ||
| 構造 (規模) | 鉄骨鉄筋コンクリート造地下1階地上6階地下1階建 | ||
| 坪数 | 30.19坪 | 築年月 | 1983年5月1日 |
| 階数 | 1階 | 空調タイプ | 個別 |
| 保証金 | - | ||
| 敷金 | - | 礼金 | - |
| 沿線・最寄駅 |
地下鉄御堂筋線 淀屋橋駅 徒歩3分 (淀屋橋駅の賃貸事務所) 京阪線(本線・中之島線) 淀屋橋駅 徒歩3分 (淀屋橋駅の賃貸事務所) 地下鉄四つ橋線 肥後橋駅 徒歩2分 (肥後橋駅の賃貸事務所) |
||
| 設備詳細 |
|
||
| EV基数 | 1基 | 人荷EV基数 | - |
| こだわり条件 |
|
||
| 備考 | ・駅近・角ビル ・新耐震基準適合・天井高2550mm ・貸会議室有り・2007年全面リニューアル |
||
| アクセス | 新大阪駅まで電車9分 大阪駅梅田駅まで電車7分 関西空港まで電車50分、車45分 伊丹空港まで車25分 高速入口:環状線堂島入口 |
||
この物件の募集フロア
住友ビルディング第4号館
- この物件へのお問い合わせはこちら


〒541-0048
大阪市中央区瓦町3丁目4番3号
瓦町公洋ビル6階
TEL:06-6231-4600
FAX:06-6231-4630
- 電話で取り急ぎ物件情報を聞く

- 物件コード:A101408
- 物件コードを電話でお伝えください
類似物件のご紹介
「住友ビルディング第4号館」とエリア、賃料、広さが類似した物件をご紹介しております。
クリオ平野町
- 大阪府大阪市中央区平野町1丁目7番10号
- 25.47坪(84.20m²)
- @12,001円/坪
~@15,000円/坪 -
地下鉄堺筋線 北浜駅 徒歩3分
京阪線(本線・中之島線) 北浜駅 徒歩5分
クリオ平野町
- 大阪府大阪市中央区平野町1丁目7番10号
- 25.47坪(84.20m²)
- @12,001円/坪
~@15,000円/坪 -
地下鉄堺筋線 北浜駅 徒歩3分
京阪線(本線・中之島線) 北浜駅 徒歩5分
リバーポイント北浜(旧リーガル北浜ビル)
- 大阪府大阪市中央区北浜1丁目3番14号
- 31.5坪(104.13m²)
- @12,001円/坪
~@15,000円/坪 -
地下鉄堺筋線 北浜駅 徒歩1分
京阪線(本線・中之島線) 北浜駅 徒歩1分






