本町サンケイ/14階 138坪 物件コード:A111444
- 電話で取り急ぎ物件情報を聞く
- 0120-366-200
- 物件コードを電話でお伝えください
物件コード:A111444


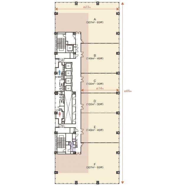
間取り図
おすすめポイント

- 2021年9月竣工予定。本町通に面す大型ビルです。制振構造と高いBCP対策機能を兼ね備えた地震に強いオフィスです。また、入居者専用屋上庭園やセンサーによる自動照明制御などCASBEE(建築環境性能評価)Sランク取得の省エネ環境対策物件です。また、地下鉄各線『本町』駅17番出口から徒歩1分と近いので、梅田や新大阪方面、なんば方面とアクセス至便な立地です。
ストリートビューを表示 ▼
- この物件の賃料の価格帯(共益費込)
- この部屋は成約済みです
本町サンケイのその他の募集階
|
|
賃料はこの物件の価格帯を表示しています。詳しい情報は電話・メールでお問い合わせください!
物件概要
| 物件名 | 本町サンケイ | ||
|---|---|---|---|
| 住所 | 大阪府大阪市中央区本町4丁目3番9号 | ||
| 構造 (規模) | 鉄骨造地上21階建 | ||
| 坪数 | 138坪 | 築年月 | 2021年8月末 |
| 階数 | 14階 | 空調タイプ | 個別 |
| 保証金 | - | ||
| 敷金 | - | 礼金 | - |
| 沿線・最寄駅 |
地下鉄御堂筋線 本町駅 徒歩1分 (本町駅の賃貸事務所) 地下鉄中央線 本町駅 徒歩2分 (本町駅の賃貸事務所) 地下鉄堺筋線 堺筋本町駅 徒歩11分 (堺筋本町駅の賃貸事務所) |
||
| 設備詳細 |
|
||
| EV基数 | 8基 | 人荷EV基数 | 1基 |
| こだわり条件 |
|
||
| 備考 | ・制震ブレース構造・自走式駐車場/駐輪場 ・CASBEE(建築環境性能評価)Sランク取得 ・整形無柱空間・電動ブラインド ・多目的バリアフリートイレ ・上層階のみ各階備蓄防災倉庫有り ・昼光センサーによる自動照明制御 ・エントランスホール天高11m ・エレベーター(低層用4基、高層用4基、非常用1基) ・入居者専用屋上庭園・ ・非常用発電機実装(共用部へ最大45時間供給) ・異系統2回線受電による電力バックアップ ・屋上庭園 |
||
| アクセス | 新大阪駅まで電車11分 大阪駅梅田駅まで電車5分 関西空港まで電車48分、車46分 伊丹空港まで車27分 高速入口:阪神高速道路・信濃橋入り口 |
||
この物件の募集フロア
本町サンケイ
- この物件へのお問い合わせはこちら


〒541-0048
大阪市中央区瓦町3丁目4番3号
瓦町公洋ビル6階
TEL:06-6231-4600
FAX:06-6231-4630
- 電話で取り急ぎ物件情報を聞く

- 物件コード:A111444
- 物件コードを電話でお伝えください
類似物件のご紹介
「本町サンケイ」とエリア、賃料、広さが類似した物件をご紹介しております。






