オービック御堂筋/1階 30.04坪 物件コード:A106431
- 電話で取り急ぎ物件情報を聞く
- 0120-366-200
- 物件コードを電話でお伝えください
物件コード:A106431


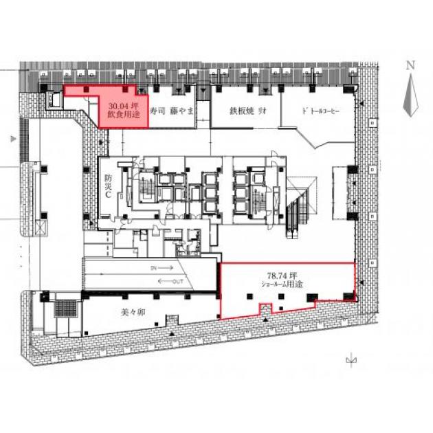
間取り図
おすすめポイント

- 2020年、新しい御堂筋のランドマークが誕生しました。オフィス・ホテル・店舗・会議室が一体になった複合施設、地上25階建て、高さ116mを誇る「御堂筋高さ制限解除第一号プロジェクト」の高層ビル。基準階面積は568坪。建物の揺れを吸収する制震装置を導入、また72時間対応の非常用自家発電を用意するなど災害が起こった際も安全・安心を確保できるハイグレードビル。
ストリートビューを表示 ▼
- この物件の賃料の価格帯(共益費込)
- この部屋は成約済みです
オービック御堂筋のその他の募集階
賃料はこの物件の価格帯を表示しています。詳しい情報は電話・メールでお問い合わせください!
物件概要
| 物件名 | オービック御堂筋 | ||
|---|---|---|---|
| 住所 | 大阪府大阪市中央区平野町4丁目2番3号 | ||
| 構造 (規模) | 鉄骨造一部鉄骨鉄筋コンクリート造地上25階地下2階建 | ||
| 坪数 | 30.04坪 | 築年月 | 2020年1月 |
| 階数 | 1階 | 空調タイプ | 個別 |
| 保証金 | - | ||
| 敷金 | - | 礼金 | - |
| 沿線・最寄駅 |
地下鉄御堂筋線 淀屋橋駅 徒歩3分 (淀屋橋駅の賃貸事務所) 地下鉄御堂筋線 本町駅 徒歩6分 (本町駅の賃貸事務所) 京阪線(本線・中之島線) 淀屋橋駅 徒歩7分 (淀屋橋駅の賃貸事務所) |
||
| 設備詳細 |
|
||
| EV基数 | 7基 | 人荷EV基数 | 2基 |
| こだわり条件 |
|
||
| 備考 | ・大通り沿い・角ビル ・新耐震基準適合・制震装置導入済み ・天井高3m・OAフロア100mm ・Low-e複層ガラス・グリッドシステム天井 ・床荷重500kg/m2(ヘビーデューティーゾーンは1000kg) ・LED照明・電気容量60VA/m ・貸会議室・休憩コーナー ・車寄せスペース |
||
| アクセス | 新大阪駅まで電車9分 大阪駅梅田駅まで電車4分 関西空港まで電車57分、車50分 伊丹空港まで車20分 高速入口:信濃橋・北浜入口 |
||
この物件の募集フロア
オービック御堂筋
- この物件へのお問い合わせはこちら


〒541-0048
大阪市中央区瓦町3丁目4番3号
瓦町公洋ビル6階
TEL:06-6231-4600
FAX:06-6231-4630
- 電話で取り急ぎ物件情報を聞く

- 物件コード:A106431
- 物件コードを電話でお伝えください
類似物件のご紹介
「オービック御堂筋」とエリア、賃料、広さが類似した物件をご紹介しております。
BRAVI北浜
- 大阪府大阪市中央区平野町1丁目7番3号
- 29.26坪(96.73m²)
- @20,001円/坪
~@30,000円/坪 -
地下鉄堺筋線 北浜駅 徒歩2分
京阪線(本線・中之島線) 北浜駅 徒歩4分






