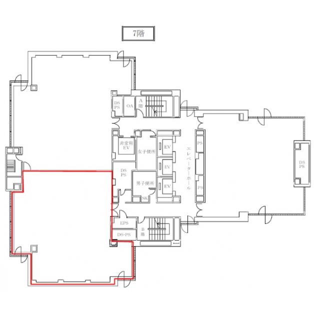
リゾートトラスト御堂筋(旧住友生命御堂筋)/7階 54.13坪 物件コード:C201493
- 電話で取り急ぎ物件情報を聞く
- 0120-366-200
- 物件コードを電話でお伝えください
物件コード:C201493
ストリートビューを表示 ▼
- この物件の賃料の価格帯(共益費込)
- この部屋は成約済みです
リゾートトラスト御堂筋(旧住友生命御堂筋)のその他の募集階
|
|
賃料はこの物件の価格帯を表示しています。詳しい情報は電話・メールでお問い合わせください!
物件概要
| 物件名 | リゾートトラスト御堂筋(旧住友生命御堂筋) | ||
|---|---|---|---|
| 住所 | 大阪府大阪市北区西天満4丁目14番3号 | ||
| 構造 (規模) | 鉄骨鉄筋コンクリート造地上20階地下1階建 | ||
| 坪数 | 54.13坪 | 築年月 | 1983年3月1日 |
| 階数 | 7階 | 空調タイプ | 集中+個別 |
| 保証金 | - | ||
| 敷金 | - | 礼金 | - |
| 沿線・最寄駅 |
地下鉄御堂筋線 淀屋橋駅 徒歩7分 (淀屋橋駅の賃貸事務所) 地下鉄谷町線 東梅田駅 徒歩6分 (東梅田駅の賃貸事務所) 地下鉄御堂筋線 梅田駅 徒歩8分 (梅田駅の賃貸事務所) |
||
| 設備詳細 |
|
||
| EV基数 | 3基 | 人荷EV基数 | 1基 |
| こだわり条件 |
|
||
| 備考 | |||
| アクセス | 新大阪駅まで電車18分 大阪駅梅田駅まで電車12分 関西空港まで電車59分、車45分 伊丹空港まで車20分 高速入口:環状線南森町・堂島入口 |
||
この物件の募集フロア
リゾートトラスト御堂筋(旧住友生命御堂筋)
- この物件へのお問い合わせはこちら


〒541-0048
大阪市中央区瓦町3丁目4番3号
瓦町公洋ビル6階
TEL:06-6231-4600
FAX:06-6231-4630
- 電話で取り急ぎ物件情報を聞く

- 物件コード:C201493
- 物件コードを電話でお伝えください
類似物件のご紹介
「リゾートトラスト御堂筋(旧住友生命御堂筋)」とエリア、賃料、広さが類似した物件をご紹介しております。
若杉センタービル本館
- 大阪府大阪市北区東天満2丁目9番1号
- 50.4坪(166.61m²)
- @15,001円/坪
~@20,000円/坪 -
JR東西線 大阪天満宮駅 徒歩1分
地下鉄谷町線 南森町駅 徒歩3分
OAPタワー
- 大阪府大阪市北区天満橋1丁目8番30号
- 56.39坪(186.41m²)
- @15,001円/坪
~@20,000円/坪 -
JR東西線 大阪天満宮駅 徒歩10分
地下鉄谷町線 南森町駅 徒歩12分









