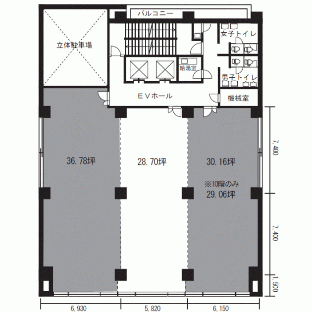
大手前類第一/8階 28.7坪 物件コード:A301203
- 電話で取り急ぎ物件情報を聞く
- 0120-366-200
- 物件コードを電話でお伝えください
物件コード:A301203
ストリートビューを表示 ▼
- この物件の賃料の価格帯(共益費込)
- この部屋は成約済みです
大手前類第一のその他の募集階
|
|
賃料はこの物件の価格帯を表示しています。詳しい情報は電話・メールでお問い合わせください!
物件概要
| 物件名 | 大手前類第一 | ||
|---|---|---|---|
| 住所 | 大阪府大阪市中央区谷町2丁目2番20号 | ||
| 構造 (規模) | 鉄骨鉄筋コンクリート造 地上10階建 新耐震基準 | ||
| 坪数 | 28.7坪 | 築年月 | 1985年3月 |
| 階数 | 8階 | 空調タイプ | 個別 |
| 保証金 | - | ||
| 敷金 | - | 礼金 | - |
| 沿線・最寄駅 |
地下鉄谷町線 天満橋駅 徒歩3分 (天満橋駅の賃貸事務所) 京阪線(本線・中之島線) 天満橋駅 徒歩4分 (天満橋駅の賃貸事務所) 地下鉄谷町線 谷町四丁目駅 徒歩3分 (谷町四丁目駅の賃貸事務所) |
||
| 設備詳細 |
|
||
| EV基数 | 2基 | 人荷EV基数 | - |
| こだわり条件 |
|
||
| 備考 | |||
| アクセス | 新大阪駅まで電車17分 大阪駅梅田駅まで電車11分 関西空港まで電車50分、車50分 伊丹空港まで車20分 高速入口:環状線高麗橋・法円坂入口 |
||
この物件の募集フロア
大手前類第一
- この物件へのお問い合わせはこちら


〒541-0048
大阪市中央区瓦町3丁目4番3号
瓦町公洋ビル6階
TEL:06-6231-4600
FAX:06-6231-4630
- 電話で取り急ぎ物件情報を聞く

- 物件コード:A301203
- 物件コードを電話でお伝えください
類似物件のご紹介
「大手前類第一」とエリア、賃料、広さが類似した物件をご紹介しております。









