大阪松田/6階 22.3坪 物件コード:A101216
- 電話で取り急ぎ物件情報を聞く
- 0120-366-200
- 物件コードを電話でお伝えください
物件コード:A101216


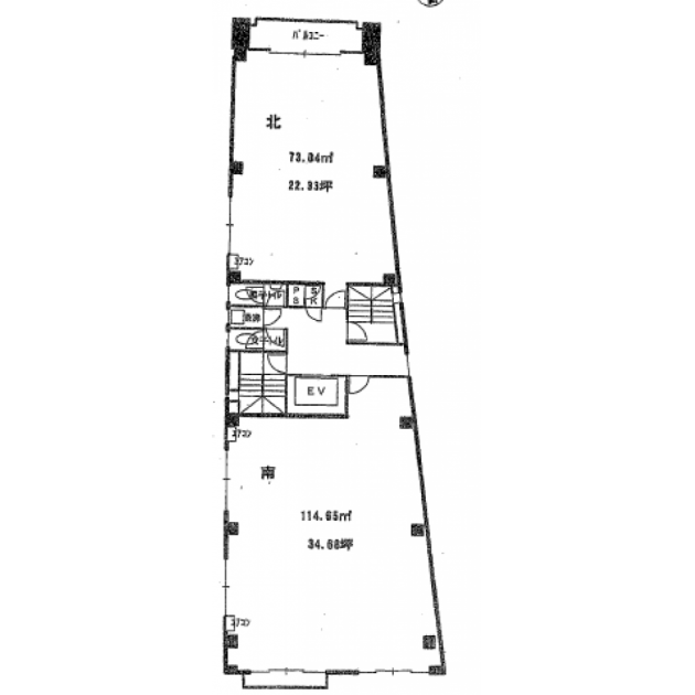
間取り図
おすすめポイント

- 大阪松田ビルは北浜駅徒歩1分の立地に位置するビルです。駅の出口が真ん前にあり、堺筋から10メートルほど西に入った立地に建っているため、来客の方にも説明がしやすいビルになります。北側と南側に一室ずつあるワンフロアー2テナントですので、周りのお客様も気になりません。
ストリートビューを表示 ▼
- この物件の賃料の価格帯(共益費込)
- この部屋は成約済みです
大阪松田のその他の募集階
|
|
賃料はこの物件の価格帯を表示しています。詳しい情報は電話・メールでお問い合わせください!
物件概要
| 物件名 | 大阪松田 | ||
|---|---|---|---|
| 住所 | 大阪府大阪市中央区北浜2丁目3番10号 | ||
| 構造 (規模) | 鉄骨造地上9階地下1階建 | ||
| 坪数 | 22.3坪 | 築年月 | 1982年1月1日 |
| 階数 | 6階 | 空調タイプ | 個別 |
| 保証金 | - | ||
| 敷金 | - | 礼金 | - |
| 沿線・最寄駅 |
地下鉄堺筋線 北浜駅 徒歩2分 (北浜駅の賃貸事務所) 地下鉄御堂筋線 淀屋橋駅 徒歩4分 (淀屋橋駅の賃貸事務所) 京阪線(本線・中之島線) 北浜駅 徒歩2分 (北浜駅の賃貸事務所) |
||
| 設備詳細 |
|
||
| EV基数 | 1基 | 人荷EV基数 | - |
| こだわり条件 |
|
||
| 備考 | 敷金無し、礼金のみ2ヵ月。 | ||
| アクセス | 新大阪駅まで電車12分 大阪駅梅田駅まで電車7分 伊丹空港まで車25分 高速入口:環状線高麗橋入口 |
||
この物件の募集フロア
大阪松田
- この物件へのお問い合わせはこちら


〒541-0048
大阪市中央区瓦町3丁目4番3号
瓦町公洋ビル6階
TEL:06-6231-4600
FAX:06-6231-4630
- 電話で取り急ぎ物件情報を聞く

- 物件コード:A101216
- 物件コードを電話でお伝えください
類似物件のご紹介
「大阪松田」とエリア、賃料、広さが類似した物件をご紹介しております。
リバーポイント北浜(旧リーガル北浜ビル)
- 大阪府大阪市中央区北浜1丁目3番14号
- 20.12坪(66.51m²)
- @12,001円/坪
~@15,000円/坪 -
地下鉄堺筋線 北浜駅 徒歩1分
京阪線(本線・中之島線) 北浜駅 徒歩1分
クリオ平野町
- 大阪府大阪市中央区平野町1丁目7番10号
- 25.47坪(84.20m²)
- @12,001円/坪
~@15,000円/坪 -
地下鉄堺筋線 北浜駅 徒歩3分
京阪線(本線・中之島線) 北浜駅 徒歩5分
平野町高橋
- 大阪府大阪市中央区平野町1丁目8番8号
- 23.46坪(77.55m²)
- @8,001円/坪
~@12,000円/坪 -
地下鉄堺筋線 北浜駅 徒歩3分
京阪線(本線・中之島線) 北浜駅 徒歩5分






