信濃橋富士/10階 26坪 物件コード:B1051002
- 電話で取り急ぎ物件情報を聞く
- 0120-366-200
- 物件コードを電話でお伝えください
物件コード:B1051002


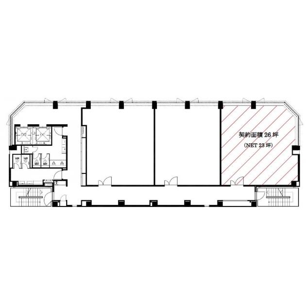
間取り図
おすすめポイント

- 地下鉄四つ橋線「本町駅」徒歩1分に位置するオフィスビルです。
外観は全面ガラス張り、屋上にリラックステラスを設け
エントランスには植物をあしらいおしゃれな空間となっております。
制震やBCPにも対応しています。
美しさと機能性、安心感を兼ね備えたハイグレードオフィスビル。
ストリートビューを表示 ▼
- この物件の賃料の価格帯(共益費込)
- この部屋は成約済みです
信濃橋富士のその他の募集階
|
|
賃料はこの物件の価格帯を表示しています。詳しい情報は電話・メールでお問い合わせください!
物件概要
| 物件名 | 信濃橋富士 | ||
|---|---|---|---|
| 住所 | 大阪府大阪市西区西本町1丁目3番10号 | ||
| 構造 (規模) | 鉄骨造地上11階建地下1階建 | ||
| 坪数 | 26坪 | 築年月 | 2017年6月1日 |
| 階数 | 10階 | 空調タイプ | 個別 |
| 保証金 | - | ||
| 敷金 | - | 礼金 | - |
| 沿線・最寄駅 |
地下鉄四つ橋線 本町駅 徒歩1分 (本町駅の賃貸事務所) 地下鉄中央線 本町駅 徒歩2分 (本町駅の賃貸事務所) 地下鉄御堂筋線 本町駅 徒歩3分 (本町駅の賃貸事務所) |
||
| 設備詳細 |
|
||
| EV基数 | 2基 | 人荷EV基数 | - |
| こだわり条件 |
|
||
| 備考 | ・1Fに福祉トイレ・女子トイレにパウダーコーナー設備・スマートシングルスキン・昼光センサー・セキュリティ連動(空調・照明)・天高2750m・駐車場34台・制震構造・LED照明・R階リフレッシュテラス有・BCP対応(非常用発電機48h供給・20VA/㎡)・ビル内2系統送電・OA100mm・自転車用EV1基 | ||
| アクセス | 新大阪駅まで電車15分 大阪駅梅田駅まで電車9分 関西空港まで電車56分、車45分 伊丹空港まで車20分 高速入口:環状線信濃橋・阿波座入口 |
||
この物件の募集フロア
信濃橋富士
- この物件へのお問い合わせはこちら


〒541-0048
大阪市中央区瓦町3丁目4番3号
瓦町公洋ビル6階
TEL:06-6231-4600
FAX:06-6231-4630
- 電話で取り急ぎ物件情報を聞く

- 物件コード:B1051002
- 物件コードを電話でお伝えください
類似物件のご紹介
「信濃橋富士」とエリア、賃料、広さが類似した物件をご紹介しております。
肥後橋センター
- 大阪府大阪市西区江戸堀1丁目9番1号
- 22.28坪(73.65m²)
- @12,001円/坪
~@15,000円/坪 -
地下鉄四つ橋線 肥後橋駅 徒歩1分
地下鉄御堂筋線 淀屋橋駅 徒歩6分
アイ・プラス江戸堀
- 大阪府大阪市西区江戸堀1丁目9番11号
- 22.94坪(75.83m²)
- @8,001円/坪
~@12,000円/坪 -
地下鉄四つ橋線 肥後橋駅 徒歩2分
地下鉄四つ橋線 本町駅 徒歩8分
本町グランド(旧サムティ本町グランド)
- 大阪府大阪市西区西本町1丁目2番17号
- 26.49坪(87.57m²)
- @12,001円/坪
~@15,000円/坪 -
地下鉄四つ橋線 本町駅 徒歩1分
地下鉄中央線 本町駅 徒歩2分






