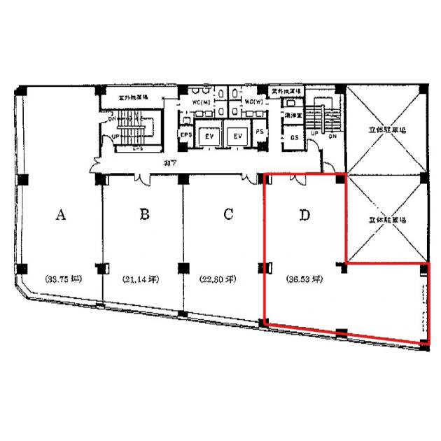
新大阪ドイ/4階 36.53坪 物件コード:D101715
- 電話で取り急ぎ物件情報を聞く
- 0120-366-200
- 物件コードを電話でお伝えください
物件コード:D101715


間取り図
おすすめポイント

- 地下鉄御堂筋線新大阪駅徒歩1分、新御堂筋に面する抜群の立地のオフィスビル。落ち着いた雰囲気で重厚感あるエントランスが魅力です。設備はエレベーターは2基設置され、管理人も常駐しており快適にご入居頂けます。ワンフロア約130坪、最小坪数は40坪の貸室のご提案が可能です。
ストリートビューを表示 ▼
- この物件の賃料の価格帯(共益費込)
- この部屋は成約済みです
新大阪ドイのその他の募集階
賃料はこの物件の価格帯を表示しています。詳しい情報は電話・メールでお問い合わせください!
物件概要
| 物件名 | 新大阪ドイ | ||
|---|---|---|---|
| 住所 | 大阪府大阪市淀川区西中島7丁目5番25号 | ||
| 構造 (規模) | 鉄骨鉄筋コンクリート造地上10階建 | ||
| 坪数 | 36.53坪 | 築年月 | 1986年7月1日 |
| 階数 | 4階 | 空調タイプ | 個別 |
| 保証金 | - | ||
| 敷金 | - | 礼金 | - |
| 沿線・最寄駅 |
地下鉄御堂筋線 新大阪駅 徒歩3分 (新大阪駅の賃貸事務所) 地下鉄御堂筋線 西中島南方駅 徒歩7分 (西中島南方駅の賃貸事務所) JR東海道本線 新大阪駅 徒歩7分 (新大阪駅の賃貸事務所) |
||
| 設備詳細 |
|
||
| EV基数 | 2基 | 人荷EV基数 | - |
| こだわり条件 |
|
||
| 備考 | |||
| アクセス | 大阪駅梅田駅まで電車5分 伊丹空港まで車20分 |
||
この物件の募集フロア
新大阪ドイ
- この物件へのお問い合わせはこちら


〒541-0048
大阪市中央区瓦町3丁目4番3号
瓦町公洋ビル6階
TEL:06-6231-4600
FAX:06-6231-4630
- 電話で取り急ぎ物件情報を聞く

- 物件コード:D101715
- 物件コードを電話でお伝えください
類似物件のご紹介
「新大阪ドイ」とエリア、賃料、広さが類似した物件をご紹介しております。
新大阪第二日大
- 大阪府大阪市東淀川区東中島1丁目6番14号
- 32.16坪(106.31m²)
- @3,000円/坪
~@8,000円/坪 -
地下鉄御堂筋線 西中島南方駅 徒歩6分
地下鉄御堂筋線 新大阪駅 徒歩7分
新大阪サンアールビル本館
- 大阪府大阪市淀川区西中島5丁目9番6号
- 32.55坪(107.60m²)
- @3,000円/坪
~@8,000円/坪 -
地下鉄御堂筋線 西中島南方駅 徒歩3分
地下鉄御堂筋線 新大阪駅 徒歩5分
新大阪太陽センター(TAIYOセンター)
- 大阪府大阪市淀川区西中島4丁目9番28号
- 41.5坪(137.19m²)
- @12,001円/坪
~@15,000円/坪 -
地下鉄御堂筋線 西中島南方駅 徒歩3分
地下鉄御堂筋線 新大阪駅 徒歩10分
新大阪
- 大阪府大阪市東淀川区西淡路1丁目1番36号
- 29.74坪(98.31m²)
- @3,000円/坪
~@8,000円/坪 -
地下鉄御堂筋線 新大阪駅 徒歩2分
地下鉄御堂筋線 西中島南方駅 徒歩13分
オリエンタル新大阪
- 大阪府大阪市淀川区西中島7丁目1番26号
- 32.98坪(109.02m²)
- @12,001円/坪
~@15,000円/坪 -
地下鉄御堂筋線 新大阪駅 徒歩4分
地下鉄御堂筋線 西中島南方駅 徒歩4分






