新大阪丸ビル別館/6階 41.1坪 物件コード:E101121
- 電話で取り急ぎ物件情報を聞く
- 0120-366-200
- 物件コードを電話でお伝えください
物件コード:E101121


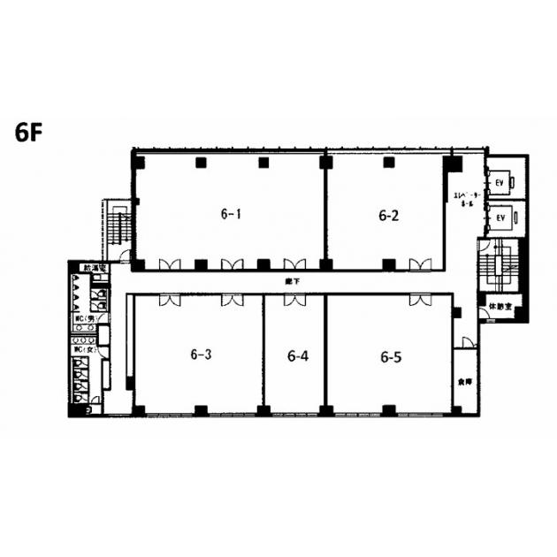
間取り図
おすすめポイント

- 貸会議室・リフレッシュルーム・大型車用駐車場などのビル設備やビルのメンテナンス管理において、ビジネスやワーカーに役立つことに積極的に取り組んでいます
ストリートビューを表示 ▼
- この物件の賃料の価格帯(共益費込)
- この部屋は成約済みです
新大阪丸ビル別館のその他の募集階
賃料はこの物件の価格帯を表示しています。詳しい情報は電話・メールでお問い合わせください!
物件概要
| 物件名 | 新大阪丸ビル別館 | ||
|---|---|---|---|
| 住所 | 大阪府大阪市東淀川区東中島1丁目18番22号 | ||
| 構造 (規模) | 鉄骨造地上10階地下1階建 | ||
| 坪数 | 41.1坪 | 築年月 | 2011年9月1日 |
| 階数 | 6階 | 空調タイプ | 個別 |
| 保証金 | - | ||
| 敷金 | - | 礼金 | - |
| 沿線・最寄駅 |
JR東海道本線 新大阪駅 徒歩3分 (新大阪駅の賃貸事務所) 地下鉄御堂筋線 新大阪駅 徒歩5分 (新大阪駅の賃貸事務所) |
||
| 設備詳細 |
|
||
| EV基数 | 2基 | 人荷EV基数 | - |
| こだわり条件 |
|
||
| 備考 | 1階より4階まH23年9月完成! 新大阪駅3分でエスカレーター完備、外観は全面ガラス張りで明るくてお洒落なフォルムです | ||
| アクセス | 新大阪駅まで電車2分 大阪駅梅田駅まで電車10分 関西空港まで電車60分、車70分 伊丹空港まで車25分 高速入口:阪神高速道路 加島入口 |
||
この物件の募集フロア
新大阪丸ビル別館
- この物件へのお問い合わせはこちら


〒541-0048
大阪市中央区瓦町3丁目4番3号
瓦町公洋ビル6階
TEL:06-6231-4600
FAX:06-6231-4630
- 電話で取り急ぎ物件情報を聞く

- 物件コード:E101121
- 物件コードを電話でお伝えください






