ランドマーク新梅田シティー ※この物件は現在、非掲載とさせていただいております。詳細はお問合せください 物件コード:C507102
- 電話で取り急ぎ物件情報を聞く
- 0120-366-200
- 物件コードを電話でお伝えください
物件コード:C507102


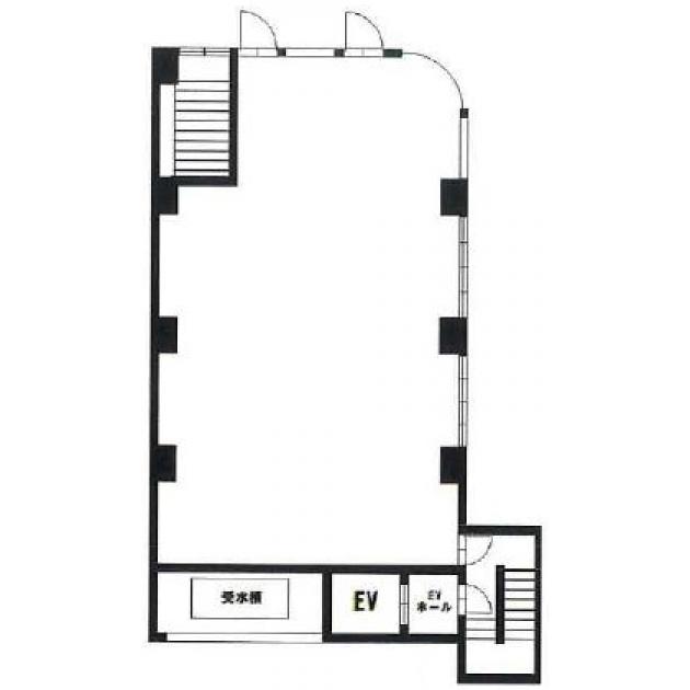
間取り図
おすすめポイント

- 梅田スカイビルの南側に位置し、目の前はスカイビルの公開空地が広がり、ロケーション抜群です。地下道で梅田から徒歩10分かからず、ワンフロアーワンテナントなので、店舗使用も可能な物件です。業種などについては一度ご確認ください。
ストリートビューを表示 ▼
ランドマーク新梅田シティー のその他の募集階
|
|
賃料はこの物件の価格帯を表示しています。詳しい情報は電話・メールでお問い合わせください!
物件概要
| 物件名 | ランドマーク新梅田シティー | ||
|---|---|---|---|
| 住所 | 大阪府大阪市北区大淀南1丁目3番11号 | ||
| 構造 (規模) | 鉄骨造地上5階建 | ||
| 坪数 | 築年月 | 1994年9月1日 | |
| 階数 | 空調タイプ | 個別 | |
| 保証金 | - | ||
| 敷金 | - | 礼金 | - |
| 沿線・最寄駅 |
JR大阪環状線 大阪駅 徒歩6分 (大阪駅の賃貸事務所) 地下鉄御堂筋線 梅田駅 徒歩8分 (梅田駅の賃貸事務所) JR東西線 新福島駅 徒歩9分 (新福島駅の賃貸事務所) |
||
| 設備詳細 |
|
||
| EV基数 | 1基 | 人荷EV基数 | - |
| こだわり条件 |
|
||
| 備考 | |||
| アクセス | 新大阪駅まで電車12分 大阪駅梅田駅まで電車6分 関西空港まで電車53分、車45分 伊丹空港まで車20分 高速入口:環状線南森町・扇町入口 |
||
この物件の募集フロア
ランドマーク新梅田シティー
- この物件へのお問い合わせはこちら


〒541-0048
大阪市中央区瓦町3丁目4番3号
瓦町公洋ビル6階
TEL:06-6231-4600
FAX:06-6231-4630
- 電話で取り急ぎ物件情報を聞く

- 物件コード:C507102
- 物件コードを電話でお伝えください
類似物件のご紹介
「ランドマーク新梅田シティー 」とエリア、賃料、広さが類似した物件をご紹介しております。
プレジャーズコーポレーション(新梅田IT)
- 大阪府大阪市北区大淀中2丁目11番8号
- 50.96坪(168.46m²)
- @8,001円/坪
~@12,000円/坪 -
地下鉄御堂筋線 梅田駅 徒歩11分
JR大阪環状線 大阪駅 徒歩10分
プレジャーズコーポレーション(新梅田IT)
- 大阪府大阪市北区大淀中2丁目11番8号
- 50.96坪(168.46m²)
- @8,001円/坪
~@12,000円/坪 -
地下鉄御堂筋線 梅田駅 徒歩11分
JR大阪環状線 大阪駅 徒歩10分
プレジャーズコーポレーション(新梅田IT)
- 大阪府大阪市北区大淀中2丁目11番8号
- 50.96坪(168.46m²)
- @8,001円/坪
~@12,000円/坪 -
地下鉄御堂筋線 梅田駅 徒歩11分
JR大阪環状線 大阪駅 徒歩10分






