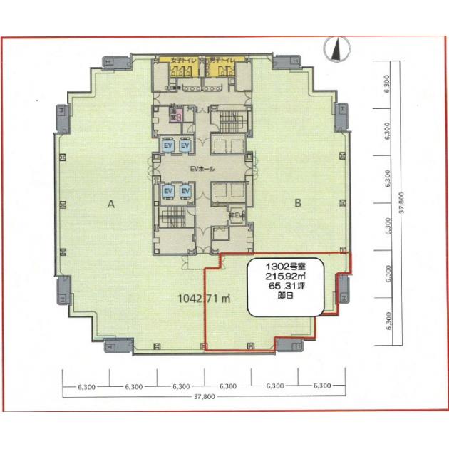
ピアスタワー/13階 65.31坪 物件コード:C503318
- 電話で取り急ぎ物件情報を聞く
- 0120-366-200
- 物件コードを電話でお伝えください
物件コード:C503318


間取り図
おすすめポイント

- 大手化粧品メーカー所有の大型ハイグレードビル。最寄駅は中津ですが、JR大阪駅、地下鉄各線梅田駅も徒歩圏内のランドマークタワーです。口紅の形を模倣した特徴的な外観となっています。1階にはカフェ、3階にはテナント専用のリフレッシュルームがあります。外観もさることながら、貸室、共用部ともにハイスペックな造りとなっているため、来客の方にも満足して頂けます。
ストリートビューを表示 ▼
- この物件の賃料の価格帯(共益費込)
- この部屋は成約済みです
ピアスタワーのその他の募集階
賃料はこの物件の価格帯を表示しています。詳しい情報は電話・メールでお問い合わせください!
物件概要
| 物件名 | ピアスタワー | ||
|---|---|---|---|
| 住所 | 大阪府大阪市北区豊崎3丁目19番3号 | ||
| 構造 (規模) | 鉄骨・鉄骨鉄筋コンクリート造地上28階地下2階建 | ||
| 坪数 | 65.31坪 | 築年月 | 1996年9月30日 |
| 階数 | 13階 | 空調タイプ | 集中+個別 |
| 保証金 | - | ||
| 敷金 | - | 礼金 | - |
| 沿線・最寄駅 |
地下鉄御堂筋線 中津駅 徒歩2分 (中津駅の賃貸事務所) 地下鉄御堂筋線 梅田駅 徒歩10分 (梅田駅の賃貸事務所) 地下鉄谷町線 中崎町駅 徒歩11分 (中崎町駅の賃貸事務所) |
||
| 設備詳細 |
|
||
| EV基数 | 8基 | 人荷EV基数 | 1基 |
| こだわり条件 |
|
||
| 備考 | リフレッシュルームも完備。 | ||
| アクセス | 新大阪駅まで電車16分 大阪駅梅田駅まで電車10分 関西空港まで電車61分、車45分 伊丹空港まで車20分 高速入口:環状線南森町・扇町入口 |
||
この物件の募集フロア
ピアスタワー
- この物件へのお問い合わせはこちら


〒541-0048
大阪市中央区瓦町3丁目4番3号
瓦町公洋ビル6階
TEL:06-6231-4600
FAX:06-6231-4630
- 電話で取り急ぎ物件情報を聞く

- 物件コード:C503318
- 物件コードを電話でお伝えください
類似物件のご紹介
「ピアスタワー」とエリア、賃料、広さが類似した物件をご紹介しております。






