中之島ダイビル/5階 5.3坪 物件コード:C305302
- 電話で取り急ぎ物件情報を聞く
- 0120-366-200
- 物件コードを電話でお伝えください
物件コード:C305302


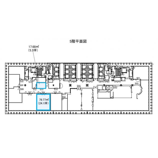
間取り図
おすすめポイント

- 地上35階建て高さ160m、大阪中之島を代表する高層シンボルタワー。地下鉄、京阪の2駅から地下でつながる駅直結型の便利なアクセス。高級感あるファサードは存在感抜群。ビル内にはリフレッシュスペースや眺めの良いカフェテリアなど共用部の設備も重質しています。
ストリートビューを表示 ▼
- この物件の賃料の価格帯(共益費込)
- @20,001円/坪~@30,000円/坪
中之島ダイビルのその他の募集階
|
続きを表示 ▼ |
賃料はこの物件の価格帯を表示しています。詳しい情報は電話・メールでお問い合わせください!
物件概要
| 物件名 | 中之島ダイビル | ||
|---|---|---|---|
| 住所 | 大阪府大阪市北区中之島3丁目3番23号
西梅田・堂島・福島・中之島でよく検索されるその他の物件 |
||
| 構造 (規模) | 鉄骨・鉄骨鉄筋コンクリート・鉄筋コンクリート造地上35階地下2階建 | ||
| 坪数 | 5.3坪 | 築年月 | 2009年3月1日 |
| 階数 | 5階 | 空調タイプ | 個別 |
| 保証金 | - | ||
| 敷金 | 賃料の12カ月分 | 礼金 | - |
| 沿線・最寄駅 |
京阪線(本線・中之島線) 大江橋駅 徒歩1分 (大江橋駅の賃貸事務所) 地下鉄四つ橋線 肥後橋駅 徒歩4分 (肥後橋駅の賃貸事務所) JR東西線 北新地駅 徒歩8分 (北新地駅の賃貸事務所) |
||
| 設備詳細 |
|
||
| EV基数 | 18基 | 人荷EV基数 | 2基 |
| こだわり条件 |
|
||
| 備考 | |||
| アクセス | 新大阪駅まで電車20分 大阪駅梅田駅まで電車13分 関西空港まで電車65分、車45分 伊丹空港まで車20分 高速入口:環状線堂島・中之島入口 |
||
この物件の募集フロア
- この物件へのお問い合わせはこちら


〒541-0048
大阪市中央区瓦町3丁目4番3号
瓦町公洋ビル6階
TEL:06-6231-4600
FAX:06-6231-4630
- 電話で取り急ぎ物件情報を聞く

- 物件コード:C305302
- 物件コードを電話でお伝えください
類似物件のご紹介
「中之島ダイビル」とエリア、賃料、広さが類似した物件をご紹介しております。
梅田スカイビルタワーウエスト
- 大阪府大阪市北区大淀中1丁目1番30号
- 5.86坪(19.37m²)
- @20,001円/坪
~@30,000円/坪 -
JR大阪環状線 大阪駅 徒歩6分
地下鉄御堂筋線 梅田駅 徒歩7分






