堂浜第二/2階 23.9坪 物件コード:C304101
- 電話で取り急ぎ物件情報を聞く
- 0120-366-200
- 物件コードを電話でお伝えください
物件コード:C304101


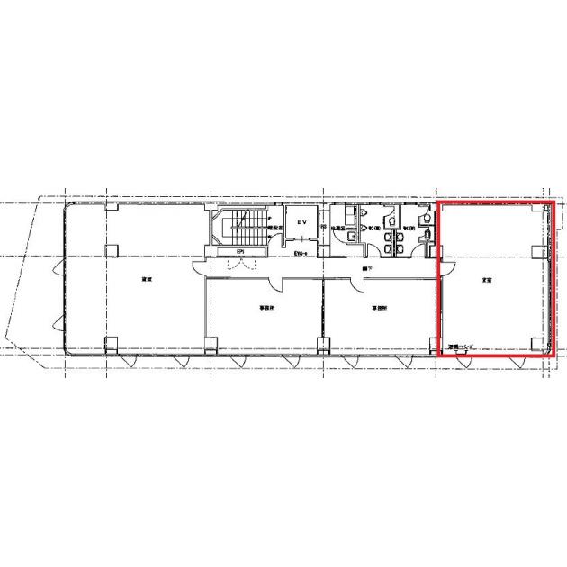
間取り図
おすすめポイント

- 堂浜第2ビルは御堂筋から1本西へ入ったところに位置する角ビルで、視認性があります。事務所使用のほか店舗での利用もご相談いただけます。京阪大江橋駅なら徒歩2分、谷町線東梅田駅、御堂筋線淀屋橋駅ならどちらも徒歩7分程度、3線利用できアクセス良好です。
ストリートビューを表示 ▼
- この物件の賃料の価格帯(共益費込)
- この部屋は成約済みです
堂浜第二のその他の募集階
|
|
賃料はこの物件の価格帯を表示しています。詳しい情報は電話・メールでお問い合わせください!
物件概要
| 物件名 | 堂浜第二 | ||
|---|---|---|---|
| 住所 | 大阪府大阪市北区堂島浜1丁目1番15号 | ||
| 構造 (規模) | 鉄筋コンクリート造地上5階地下1階建 | ||
| 坪数 | 23.9坪 | 築年月 | 1987年2月1日 |
| 階数 | 2階 | 空調タイプ | 個別 |
| 保証金 | - | ||
| 敷金 | - | 礼金 | - |
| 沿線・最寄駅 |
京阪線(本線・中之島線) 大江橋駅 徒歩2分 (大江橋駅の賃貸事務所) 地下鉄谷町線 東梅田駅 徒歩7分 (東梅田駅の賃貸事務所) 地下鉄御堂筋線 淀屋橋駅 徒歩6分 (淀屋橋駅の賃貸事務所) |
||
| 設備詳細 |
|
||
| EV基数 | 1基 | 人荷EV基数 | - |
| こだわり条件 |
|
||
| 備考 | |||
| アクセス | 新大阪駅まで電車16分 大阪駅梅田駅まで電車10分 関西空港まで電車59分、車45分 伊丹空港まで車20分 高速入口:環状線堂島・中之島入口 |
||
この物件の募集フロア
堂浜第二
- この物件へのお問い合わせはこちら


〒541-0048
大阪市中央区瓦町3丁目4番3号
瓦町公洋ビル6階
TEL:06-6231-4600
FAX:06-6231-4630
- 電話で取り急ぎ物件情報を聞く

- 物件コード:C304101
- 物件コードを電話でお伝えください
類似物件のご紹介
「堂浜第二」とエリア、賃料、広さが類似した物件をご紹介しております。
甲南アセット中之島
- 大阪府大阪市北区中之島4丁目2番28号
- 23.67坪(78.25m²)
- @8,001円/坪
~@12,000円/坪 -
京阪線(本線・中之島線) 中之島駅 徒歩2分
地下鉄四つ橋線 肥後橋駅 徒歩6分






