堂北ビルディング(サンアール堂北)/3階 24.68坪 物件コード:C303222
- 電話で取り急ぎ物件情報を聞く
- 0120-366-200
- 物件コードを電話でお伝えください
物件コード:C303222


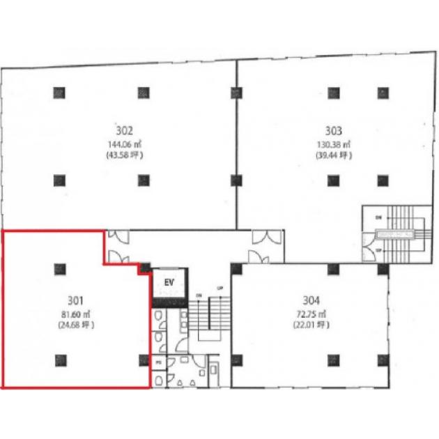
間取り図
おすすめポイント

- 大阪メトロ四つ橋線「西梅田駅」徒歩6分の立地に位置するビル。築年数は経っていますが、共用部がリニューアルされたのでそんなに古い印象はありません。
周辺には広告業や放送関係の会社が多く、クリエイティブな企業に好まれる立地です。
ストリートビューを表示 ▼
- この物件の賃料の価格帯(共益費込)
- @12,001円/坪~@15,000円/坪
堂北ビルディング(サンアール堂北)のその他の募集階
|
続きを表示 ▼ |
賃料はこの物件の価格帯を表示しています。詳しい情報は電話・メールでお問い合わせください!
物件概要
| 物件名 | 堂北ビルディング(サンアール堂北) | ||
|---|---|---|---|
| 住所 | 大阪府大阪市北区堂島2丁目3番2号
西梅田・堂島・福島でよく検索されるその他の物件 |
||
| 構造 (規模) | 鉄筋コンクリート造地上7階地下1階建 | ||
| 坪数 | 24.68坪 | 築年月 | 1962年11月 |
| 階数 | 3階 | 空調タイプ | 個別 |
| 保証金 | - | ||
| 敷金 | 賃料の6カ月分 | 礼金 | - |
| 沿線・最寄駅 |
地下鉄四つ橋線 西梅田駅 徒歩6分 (西梅田駅の賃貸事務所) JR東西線 北新地駅 徒歩4分 (北新地駅の賃貸事務所) JR大阪環状線 大阪駅 徒歩9分 (大阪駅の賃貸事務所) |
||
| 設備詳細 |
|
||
| EV基数 | 1基 | 人荷EV基数 | - |
| こだわり条件 |
|
||
| 備考 | 2007年エントランスリニューアル。様々な広さに対応可能。コストパフォーマンスも高く、 西梅田で比較的お手頃な条件で人気の物件です。 |
||
| アクセス | 新大阪駅まで電車15分 大阪駅梅田駅まで電車9分 関西空港まで電車61分、車45分 伊丹空港まで車20分 高速入口:環状線堂島・梅田入口 |
||
この物件の募集フロア
堂北ビルディング(サンアール堂北)
- この物件へのお問い合わせはこちら


〒541-0048
大阪市中央区瓦町3丁目4番3号
瓦町公洋ビル6階
TEL:06-6231-4600
FAX:06-6231-4630
- 電話で取り急ぎ物件情報を聞く

- 物件コード:C303222
- 物件コードを電話でお伝えください
類似物件のご紹介
「堂北ビルディング(サンアール堂北)」とエリア、賃料、広さが類似した物件をご紹介しております。
中之島インテス
- 大阪府大阪市北区中之島6丁目2番40号
- 27.66坪(91.44m²)
- @12,001円/坪
~@15,000円/坪 -
京阪線(本線・中之島線) 中之島駅 徒歩2分
地下鉄千日前線 玉川駅 徒歩10分






