大阪小学館/1階 28.49坪 物件コード:C302214
- 電話で取り急ぎ物件情報を聞く
- 0120-366-200
- 物件コードを電話でお伝えください
物件コード:C302214


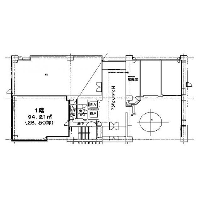
間取り図
おすすめポイント

- 大手出版社「小学館」のグループ会社が所有しているビルで、大通り沿いに面しており1階は小学館から出版されてされている話題の図書の広告を掲載されているので大変視認性があります。ビル内はシックな印象で管理も行き届いていますし、管理人も常駐しており、安心してご入居頂けます。
ストリートビューを表示 ▼
- この物件の賃料の価格帯(共益費込)
- この部屋は成約済みです
大阪小学館のその他の募集階
|
|
賃料はこの物件の価格帯を表示しています。詳しい情報は電話・メールでお問い合わせください!
物件概要
| 物件名 | 大阪小学館 | ||
|---|---|---|---|
| 住所 | 大阪府大阪市北区曽根崎新地2丁目6番12号 | ||
| 構造 (規模) | 鉄骨鉄筋コンクリート造地上9階地下1階建 | ||
| 坪数 | 28.49坪 | 築年月 | 1983年2月1日 |
| 階数 | 1階 | 空調タイプ | 個別 |
| 保証金 | - | ||
| 敷金 | - | 礼金 | - |
| 沿線・最寄駅 |
地下鉄四つ橋線 西梅田駅 徒歩3分 (西梅田駅の賃貸事務所) JR大阪環状線 大阪駅 徒歩5分 (大阪駅の賃貸事務所) JR東西線 北新地駅 徒歩2分 (北新地駅の賃貸事務所) |
||
| 設備詳細 |
|
||
| EV基数 | 2基 | 人荷EV基数 | - |
| こだわり条件 |
|
||
| 備考 | |||
| アクセス | 新大阪駅まで電車11分 大阪駅梅田駅まで電車5分 関西空港まで電車59分、車45分 伊丹空港まで車20分 高速入口:環状線堂島・梅田入口 |
||
この物件の募集フロア
大阪小学館
- この物件へのお問い合わせはこちら


〒541-0048
大阪市中央区瓦町3丁目4番3号
瓦町公洋ビル6階
TEL:06-6231-4600
FAX:06-6231-4630
- 電話で取り急ぎ物件情報を聞く

- 物件コード:C302214
- 物件コードを電話でお伝えください
類似物件のご紹介
「大阪小学館」とエリア、賃料、広さが類似した物件をご紹介しております。
JMFビル大阪福島02(旧KM西梅田)
- 大阪府大阪市福島区福島7丁目20番1号
- 29.72坪(98.25m²)
- @12,001円/坪
~@15,000円/坪 -
JR大阪環状線 大阪駅 徒歩11分
JR東西線 新福島駅 徒歩8分
中之島インテス
- 大阪府大阪市北区中之島6丁目2番40号
- 27.66坪(91.44m²)
- @12,001円/坪
~@15,000円/坪 -
京阪線(本線・中之島線) 中之島駅 徒歩2分
地下鉄千日前線 玉川駅 徒歩10分






