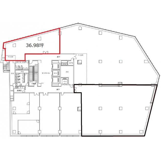
関電不動産西梅田(旧:西梅田MID)/9階 36.98坪 物件コード:C302207
- 電話で取り急ぎ物件情報を聞く
- 0120-366-200
- 物件コードを電話でお伝えください
物件コード:C302207


間取り図
おすすめポイント

- 四ツ橋筋と2号線に面した桜橋交差点に位置する角ビル。基準階面積は約400坪の大型ビルで、エレベーターは4基設置、50年以上前に建てられましたが耐震補強工事、共用部のリニューアル工事を行っており、丁寧に管理されています。このビルは各線大阪駅・確梅田駅に直結しており大変便利です。
ストリートビューを表示 ▼
- この物件の賃料の価格帯(共益費込)
- この部屋は成約済みです
関電不動産西梅田(旧:西梅田MID)のその他の募集階
賃料はこの物件の価格帯を表示しています。詳しい情報は電話・メールでお問い合わせください!
物件概要
| 物件名 | 関電不動産西梅田(旧:西梅田MID) | ||
|---|---|---|---|
| 住所 | 大阪府大阪市北区曽根崎新地2丁目2番16号 | ||
| 構造 (規模) | 鉄骨鉄筋コンクリート造地上9階地下4階建 | ||
| 坪数 | 36.98坪 | 築年月 | 1965年12月1日 |
| 階数 | 9階 | 空調タイプ | 集中+個別 |
| 保証金 | - | ||
| 敷金 | - | 礼金 | - |
| 沿線・最寄駅 |
JR東西線 北新地駅 徒歩1分 (北新地駅の賃貸事務所) 地下鉄四つ橋線 西梅田駅 徒歩2分 (西梅田駅の賃貸事務所) JR大阪環状線 大阪駅 徒歩4分 (大阪駅の賃貸事務所) |
||
| 設備詳細 |
|
||
| EV基数 | 3基 | 人荷EV基数 | 1基 |
| こだわり条件 |
|
||
| 備考 | |||
| アクセス | 新大阪駅まで電車110分 大阪駅梅田駅まで電車4分 関西空港まで電車59分、車45分 伊丹空港まで車20分 高速入口:環状線堂島・梅田入口 |
||
この物件の募集フロア
関電不動産西梅田(旧:西梅田MID)
- この物件へのお問い合わせはこちら


〒541-0048
大阪市中央区瓦町3丁目4番3号
瓦町公洋ビル6階
TEL:06-6231-4600
FAX:06-6231-4630
- 電話で取り急ぎ物件情報を聞く

- 物件コード:C302207
- 物件コードを電話でお伝えください
類似物件のご紹介
「関電不動産西梅田(旧:西梅田MID)」とエリア、賃料、広さが類似した物件をご紹介しております。
フジヒサFJ中之島
- 大阪府大阪市北区中之島4丁目3番25号
- 33.38坪(110.35m²)
- @15,001円/坪
~@20,000円/坪 -
京阪線(本線・中之島線) 中之島駅 徒歩1分
JR東西線 新福島駅 徒歩7分
堂島アクシス
- 大阪府大阪市北区堂島浜2丁目2番28号
- 35.88坪(118.61m²)
- @15,001円/坪
~@20,000円/坪 -
地下鉄四つ橋線 西梅田駅 徒歩6分
京阪線(本線・中之島線) 渡辺橋駅 徒歩2分
フジヒサFJ中之島
- 大阪府大阪市北区中之島4丁目3番25号
- 33.38坪(110.35m²)
- @15,001円/坪
~@20,000円/坪 -
京阪線(本線・中之島線) 中之島駅 徒歩1分
JR東西線 新福島駅 徒歩7分






