若杉センタービル本館/12階 24.1坪 物件コード:C111239
- 電話で取り急ぎ物件情報を聞く
- 0120-366-200
- 物件コードを電話でお伝えください
物件コード:C111239


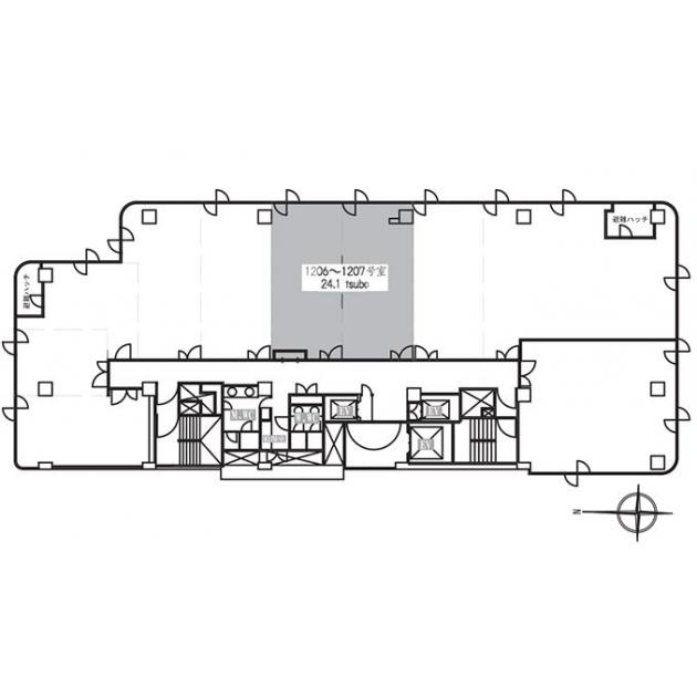
間取り図
おすすめポイント

- JR東西線「大阪天満宮」駅、地下鉄「南森町」駅直結で傘いらずの快適オフィス。全面カーテンウォールのガラスばりの明るい大型窓。周辺では知らない人はいない程の目立つビルです。
17階には自動販売機が設置されている休憩室もありますので、ちょっとしたブレイクにも最適です。
ストリートビューを表示 ▼
- この物件の賃料の価格帯(共益費込)
- この部屋は成約済みです
若杉センタービル本館のその他の募集階
賃料はこの物件の価格帯を表示しています。詳しい情報は電話・メールでお問い合わせください!
物件概要
| 物件名 | 若杉センタービル本館 | ||
|---|---|---|---|
| 住所 | 大阪府大阪市北区東天満2丁目9番1号 | ||
| 構造 (規模) | 鉄骨鉄筋コンクリート造地上17階地下1階建 | ||
| 坪数 | 24.1坪 | 築年月 | 1992年 |
| 階数 | 12階 | 空調タイプ | 個別 |
| 保証金 | - | ||
| 敷金 | - | 礼金 | - |
| 沿線・最寄駅 |
JR東西線 大阪天満宮駅 徒歩1分 (大阪天満宮駅の賃貸事務所) 地下鉄谷町線 南森町駅 徒歩3分 (南森町駅の賃貸事務所) 地下鉄堺筋線 南森町駅 徒歩3分 (南森町駅の賃貸事務所) |
||
| 設備詳細 |
|
||
| EV基数 | 2基 | 人荷EV基数 | 1基 |
| こだわり条件 |
|
||
| 備考 | |||
| アクセス | 新大阪駅まで電車18分 大阪駅梅田駅まで電車12分 関西空港まで電車58分、車45分 伊丹空港まで車20分 高速入口:環状線南森町・扇町入口 |
||
- この物件へのお問い合わせはこちら


〒541-0048
大阪市中央区瓦町3丁目4番3号
瓦町公洋ビル6階
TEL:06-6231-4600
FAX:06-6231-4630
- 電話で取り急ぎ物件情報を聞く

- 物件コード:C111239
- 物件コードを電話でお伝えください
類似物件のご紹介
「若杉センタービル本館」とエリア、賃料、広さが類似した物件をご紹介しております。
OAPタワー
- 大阪府大阪市北区天満橋1丁目8番30号
- 25.95坪(85.79m²)
- @15,001円/坪
~@20,000円/坪 -
JR東西線 大阪天満宮駅 徒歩10分
地下鉄谷町線 南森町駅 徒歩12分
OAPタワー
- 大阪府大阪市北区天満橋1丁目8番30号
- 25.95坪(85.79m²)
- @15,001円/坪
~@20,000円/坪 -
JR東西線 大阪天満宮駅 徒歩10分
地下鉄谷町線 南森町駅 徒歩12分
H2O TOWER(エイチ・ツー・オー・タワー)
- 大阪府大阪市北区西天満2丁目5番2号
- 25.2坪(83.31m²)
- @15,001円/坪
~@20,000円/坪 -
京阪線(本線・中之島線) 大江橋駅 徒歩2分
地下鉄御堂筋線 淀屋橋駅 徒歩4分






