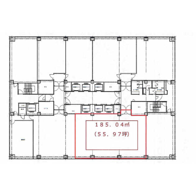
肥後橋センター/10階 55.97坪 物件コード:B1021027
- 電話で取り急ぎ物件情報を聞く
- 0120-366-200
- 物件コードを電話でお伝えください
物件コード:B1021027
ストリートビューを表示 ▼
- この物件の賃料の価格帯(共益費込)
- この部屋は成約済みです
肥後橋センターのその他の募集階
賃料はこの物件の価格帯を表示しています。詳しい情報は電話・メールでお問い合わせください!
物件概要
| 物件名 | 肥後橋センター | ||
|---|---|---|---|
| 住所 | 大阪府大阪市西区江戸堀1丁目9番1号 | ||
| 構造 (規模) | 鉄骨鉄筋コンクリート・鉄骨造地上19階地下2階建 | ||
| 坪数 | 55.97坪 | 築年月 | 1977年10月1日 |
| 階数 | 10階 | 空調タイプ | 集中+個別 |
| 保証金 | - | ||
| 敷金 | - | 礼金 | - |
| 沿線・最寄駅 |
地下鉄四つ橋線 肥後橋駅 徒歩1分 (肥後橋駅の賃貸事務所) 地下鉄御堂筋線 淀屋橋駅 徒歩6分 (淀屋橋駅の賃貸事務所) 京阪線(本線・中之島線) 淀屋橋駅 徒歩7分 (淀屋橋駅の賃貸事務所) |
||
| 設備詳細 |
|
||
| EV基数 | 7基 | 人荷EV基数 | - |
| こだわり条件 |
|
||
| 備考 | |||
| アクセス | 新大阪駅まで電車15分 大阪駅梅田駅まで電車9分 関西空港まで電車56分、車45分 伊丹空港まで車20分 高速入口:環状線堂島・中之島・中之島西入口 |
||
この物件の募集フロア
肥後橋センター
- この物件へのお問い合わせはこちら


〒541-0048
大阪市中央区瓦町3丁目4番3号
瓦町公洋ビル6階
TEL:06-6231-4600
FAX:06-6231-4630
- 電話で取り急ぎ物件情報を聞く

- 物件コード:B1021027
- 物件コードを電話でお伝えください









