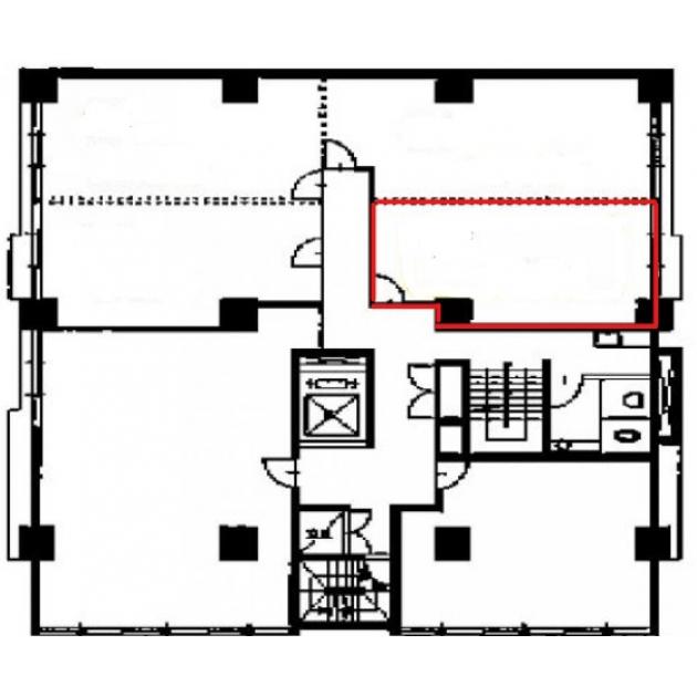
第7松屋/8階 9.77坪 物件コード:A319005
- 電話で取り急ぎ物件情報を聞く
- 0120-366-200
- 物件コードを電話でお伝えください
物件コード:A319005
ストリートビューを表示 ▼
- この物件の賃料の価格帯(共益費込)
- この部屋は成約済みです
第7松屋のその他の募集階
|
|
賃料はこの物件の価格帯を表示しています。詳しい情報は電話・メールでお問い合わせください!
物件概要
| 物件名 | 第7松屋 | ||
|---|---|---|---|
| 住所 | 大阪府大阪市中央区本町橋2番23号 | ||
| 構造 (規模) | 鉄骨造地上14階建 | ||
| 坪数 | 9.77坪 | 築年月 | 1980年12月1日 |
| 階数 | 8階 | 空調タイプ | 個別 |
| 保証金 | - | ||
| 敷金 | - | 礼金 | - |
| 沿線・最寄駅 |
地下鉄堺筋線 堺筋本町駅 徒歩5分 (堺筋本町駅の賃貸事務所) 地下鉄中央線 堺筋本町駅 徒歩6分 (堺筋本町駅の賃貸事務所) 地下鉄谷町線 谷町四丁目駅 徒歩7分 (谷町四丁目駅の賃貸事務所) |
||
| 設備詳細 |
|
||
| EV基数 | 1基 | 人荷EV基数 | - |
| こだわり条件 |
|
||
| 備考 | |||
| アクセス | 新大阪駅まで電車19分 大阪駅梅田駅まで電車13分 関西空港まで電車58分、車45分 伊丹空港まで車20分 高速入口:環状線高麗橋・法円坂入口 |
||
この物件の募集フロア
第7松屋
- この物件へのお問い合わせはこちら


〒541-0048
大阪市中央区瓦町3丁目4番3号
瓦町公洋ビル6階
TEL:06-6231-4600
FAX:06-6231-4630
- 電話で取り急ぎ物件情報を聞く

- 物件コード:A319005
- 物件コードを電話でお伝えください
類似物件のご紹介
「第7松屋」とエリア、賃料、広さが類似した物件をご紹介しております。
MITエクシード
- 大阪府大阪市中央区久太郎町1丁目6番5号
- 8.5坪(28.10m²)
- @8,001円/坪
~@12,000円/坪 -
地下鉄堺筋線 堺筋本町駅 徒歩3分
地下鉄中央線 堺筋本町駅 徒歩3分
アーバンフラッツ瓦町(旧エスティメゾン瓦町)
- 大阪府大阪市中央区瓦町3丁目2番10号
- 9.67坪(31.97m²)
- @8,001円/坪
~@12,000円/坪 -
地下鉄御堂筋線 本町駅 徒歩6分
地下鉄堺筋線 堺筋本町駅 徒歩6分
RE-SOUL清水谷
- 大阪府大阪市天王寺区清水谷町19番1号
- 10.71坪(35.40m²)
- @8,001円/坪
~@12,000円/坪 -
地下鉄谷町線 谷町六丁目駅 徒歩6分
地下鉄長堀鶴見緑地線 玉造駅 徒歩6分
大手前田中
- 大阪府大阪市中央区谷町2丁目2番18号
- 10.64坪(35.17m²)
- @8,001円/坪
~@12,000円/坪 -
地下鉄谷町線 天満橋駅 徒歩3分
京阪線(本線・中之島線) 天満橋駅 徒歩3分








