大阪文化会館/1階 22.38坪 物件コード:A308208
- 電話で取り急ぎ物件情報を聞く
- 0120-366-200
- 物件コードを電話でお伝えください
物件コード:A308208
ストリートビューを表示 ▼
- この物件の賃料の価格帯(共益費込)
- @8,001円/坪~@12,000円/坪
大阪文化会館のその他の募集階
|
|
賃料はこの物件の価格帯を表示しています。詳しい情報は電話・メールでお問い合わせください!
物件概要
| 物件名 | 大阪文化会館 | ||
|---|---|---|---|
| 住所 | 大阪府大阪市中央区内平野町2丁目2番7号
天満橋・谷町でよく検索されるその他の物件 |
||
| 構造 (規模) | 鉄骨造地上9階建 | ||
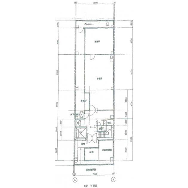
| 坪数 | 22.38坪 | 築年月 | 1985年6月1日 |
| 階数 | 1階 | 空調タイプ | 個別 |
| 保証金 | - | ||
| 敷金 | 賃料の3カ月分 | 礼金 | 賃料の1カ月分 |
| 沿線・最寄駅 |
地下鉄谷町線 天満橋駅 徒歩5分 (天満橋駅の賃貸事務所) 京阪線(本線・中之島線) 天満橋駅 徒歩7分 (天満橋駅の賃貸事務所) 地下鉄谷町線 谷町四丁目駅 徒歩7分 (谷町四丁目駅の賃貸事務所) |
||
| 設備詳細 |
|
||
| EV基数 | 1基 | 人荷EV基数 | - |
| こだわり条件 |
|
||
| 備考 | |||
| アクセス | 新大阪駅まで電車20分 大阪駅梅田駅まで電車14分 関西空港まで電車59分、車45分 伊丹空港まで車20分 高速入口:環状線高麗橋・法円坂入口 |
||
この物件の募集フロア
大阪文化会館
- この物件へのお問い合わせはこちら


〒541-0048
大阪市中央区瓦町3丁目4番3号
瓦町公洋ビル6階
TEL:06-6231-4600
FAX:06-6231-4630
- 電話で取り急ぎ物件情報を聞く

- 物件コード:A308208
- 物件コードを電話でお伝えください
類似物件のご紹介
「大阪文化会館」とエリア、賃料、広さが類似した物件をご紹介しております。
天満橋八千代ビル別館
- 大阪府大阪市中央区天満橋京町2番6号
- 20.49坪(67.74m²)
- @8,001円/坪
~@12,000円/坪 -
地下鉄谷町線 天満橋駅 徒歩1分
京阪線(本線・中之島線) 天満橋駅 徒歩1分
T・H
- 大阪府大阪市天王寺区六万体町4番18号
- 24.14坪(79.80m²)
- @8,001円/坪
~@12,000円/坪 -
地下鉄谷町線 四天王寺前夕陽ケ丘駅 徒歩1分
地下鉄谷町線 谷町九丁目駅 徒歩8分








