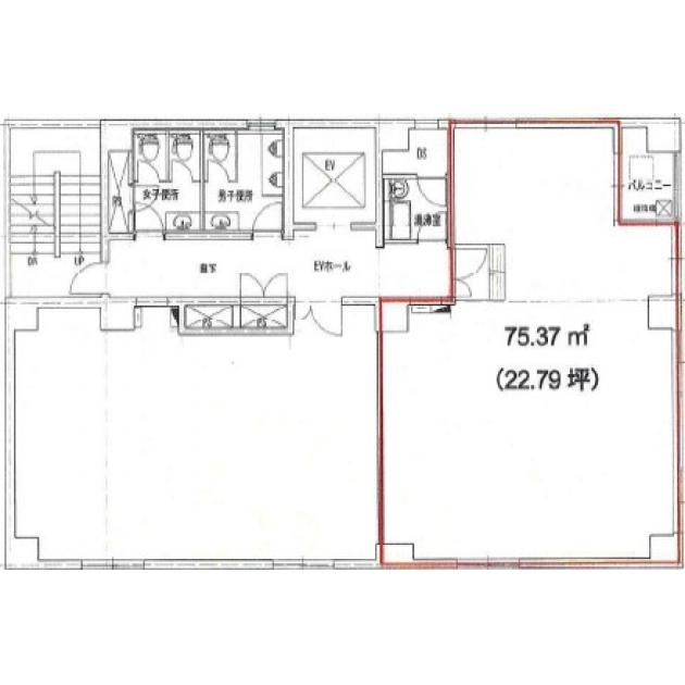
島町第二野村/2階 22.79坪 物件コード:A305210
- 電話で取り急ぎ物件情報を聞く
- 0120-366-200
- 物件コードを電話でお伝えください
物件コード:A305210
ストリートビューを表示 ▼
- この物件の賃料の価格帯(共益費込)
- この部屋は成約済みです
島町第二野村のその他の募集階
|
|
賃料はこの物件の価格帯を表示しています。詳しい情報は電話・メールでお問い合わせください!
物件概要
| 物件名 | 島町第二野村 | ||
|---|---|---|---|
| 住所 | 大阪府大阪市中央区島町2丁目4番9号 | ||
| 構造 (規模) | 鉄筋コンクリート造地上9階地下1階 | ||
| 坪数 | 22.79坪 | 築年月 | 1986年3月 |
| 階数 | 2階 | 空調タイプ | 個別 |
| 保証金 | - | ||
| 敷金 | - | 礼金 | - |
| 沿線・最寄駅 |
地下鉄谷町線 天満橋駅 徒歩5分 (天満橋駅の賃貸事務所) 京阪線(本線・中之島線) 天満橋駅 徒歩6分 (天満橋駅の賃貸事務所) 地下鉄堺筋線 北浜駅 徒歩8分 (北浜駅の賃貸事務所) |
||
| 設備詳細 |
|
||
| EV基数 | 1基 | 人荷EV基数 | - |
| こだわり条件 |
|
||
| 備考 | |||
| アクセス | 新大阪駅まで電車20分 大阪駅梅田駅まで電車14分 関西空港まで電車59分、車45分 伊丹空港まで車21分 高速入口:環状線高麗橋・南森町入口 |
||
この物件の募集フロア
島町第二野村
- この物件へのお問い合わせはこちら


〒541-0048
大阪市中央区瓦町3丁目4番3号
瓦町公洋ビル6階
TEL:06-6231-4600
FAX:06-6231-4630
- 電話で取り急ぎ物件情報を聞く

- 物件コード:A305210
- 物件コードを電話でお伝えください
類似物件のご紹介
「島町第二野村」とエリア、賃料、広さが類似した物件をご紹介しております。
第8松屋
- 大阪府大阪市中央区農人橋2丁目1番35号
- 23.29坪(76.99m²)
- @8,001円/坪
~@12,000円/坪 -
地下鉄谷町線 谷町四丁目駅 徒歩1分
地下鉄中央線 谷町四丁目駅 徒歩1分
天満橋八千代ビル別館
- 大阪府大阪市中央区天満橋京町2番6号
- 27.24坪(90.05m²)
- @8,001円/坪
~@12,000円/坪 -
地下鉄谷町線 天満橋駅 徒歩1分
京阪線(本線・中之島線) 天満橋駅 徒歩1分
大阪文化会館
- 大阪府大阪市中央区内平野町2丁目2番7号
- 22.38坪(73.98m²)
- @8,001円/坪
~@12,000円/坪 -
地下鉄谷町線 天満橋駅 徒歩5分
京阪線(本線・中之島線) 天満橋駅 徒歩7分








