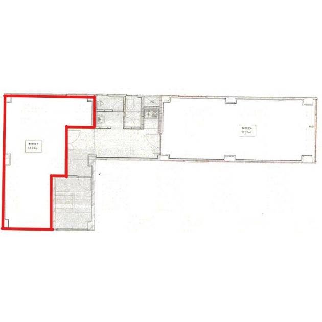
天満橋高橋/2階 9.76坪 物件コード:A303008
- 電話で取り急ぎ物件情報を聞く
- 0120-366-200
- 物件コードを電話でお伝えください
物件コード:A303008
ストリートビューを表示 ▼
- この物件の賃料の価格帯(共益費込)
- この部屋は成約済みです
天満橋高橋のその他の募集階
賃料はこの物件の価格帯を表示しています。詳しい情報は電話・メールでお問い合わせください!
物件概要
| 物件名 | 天満橋高橋 | ||
|---|---|---|---|
| 住所 | 大阪府大阪市中央区天満橋京町1番23号 | ||
| 構造 (規模) | 鉄筋コンクリート造地上3階 | ||
| 坪数 | 9.76坪 | 築年月 | 1965年11月1日 |
| 階数 | 2階 | 空調タイプ | 個別 |
| 保証金 | - | ||
| 敷金 | - | 礼金 | - |
| 沿線・最寄駅 |
京阪線(本線・中之島線) 天満橋駅 徒歩1分 (天満橋駅の賃貸事務所) 地下鉄谷町線 天満橋駅 徒歩2分 (天満橋駅の賃貸事務所) 地下鉄谷町線 谷町四丁目駅 徒歩8分 (谷町四丁目駅の賃貸事務所) |
||
| 設備詳細 |
|
||
| EV基数 | - | 人荷EV基数 | - |
| こだわり条件 |
|
||
| 備考 | |||
| アクセス | 新大阪駅まで電車18分 大阪駅梅田駅まで電車12分 関西空港まで電車56分、車45分 伊丹空港まで車20分 高速入口:環状線高麗橋・法円坂入口 |
||
この物件の募集フロア
天満橋高橋
- この物件へのお問い合わせはこちら


〒541-0048
大阪市中央区瓦町3丁目4番3号
瓦町公洋ビル6階
TEL:06-6231-4600
FAX:06-6231-4630
- 電話で取り急ぎ物件情報を聞く

- 物件コード:A303008
- 物件コードを電話でお伝えください
類似物件のご紹介
「天満橋高橋」とエリア、賃料、広さが類似した物件をご紹介しております。
AXIS谷町
- 大阪府大阪市中央区農人橋1丁目4番31号
- 10.74坪(35.50m²)
- @8,001円/坪
~@12,000円/坪 -
地下鉄谷町線 谷町四丁目駅 徒歩2分
地下鉄中央線 谷町四丁目駅 徒歩2分
RE-SOUL清水谷
- 大阪府大阪市天王寺区清水谷町19番1号
- 9.07坪(29.98m²)
- @8,001円/坪
~@12,000円/坪 -
地下鉄谷町線 谷町六丁目駅 徒歩6分
地下鉄長堀鶴見緑地線 玉造駅 徒歩6分
豊昌パーク
- 大阪府大阪市中央区船越町1丁目2番6号
- 8.45坪(27.93m²)
- @8,001円/坪
~@12,000円/坪 -
地下鉄谷町線 天満橋駅 徒歩2分
京阪線(本線・中之島線) 天満橋駅 徒歩4分








