ゼント心斎橋(旧ヒューリック心斎橋)/2階 91.83坪 物件コード:A205404
- 電話で取り急ぎ物件情報を聞く
- 0120-366-200
- 物件コードを電話でお伝えください
物件コード:A205404


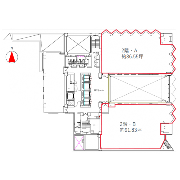
間取り図
おすすめポイント

- 御堂筋に面した抜群の立地に立つハイグレードオフィス。見上げればギザギザの外観で卓越したデザインが目を引きます。もちろんセキュリティや荷物用エレベーターも完備、管理も行き届いてます。貸室はワンフロア230坪~分割区画40坪までご提案が可能です。
ストリートビューを表示 ▼
- この物件の賃料の価格帯(共益費込)
- @15,001円/坪~@20,000円/坪
ゼント心斎橋(旧ヒューリック心斎橋)のその他の募集階
賃料はこの物件の価格帯を表示しています。詳しい情報は電話・メールでお問い合わせください!
物件概要
| 物件名 | ゼント心斎橋(旧ヒューリック心斎橋) | ||
|---|---|---|---|
| 住所 | 大阪府大阪市中央区南船場4丁目3番2号
心斎橋・長堀橋でよく検索されるその他の物件 |
||
| 構造 (規模) | 鉄骨鉄筋コンクリート造地上12階建 | ||
| 坪数 | 91.83坪 | 築年月 | 1980年10月1日 |
| 階数 | 2階 | 空調タイプ | 個別 |
| 保証金 | - | ||
| 敷金 | 賃料の12カ月分 | 礼金 | - |
| 沿線・最寄駅 |
地下鉄御堂筋線 心斎橋駅 徒歩3分 (心斎橋駅の賃貸事務所) 地下鉄長堀鶴見緑地線 心斎橋駅 徒歩3分 (心斎橋駅の賃貸事務所) 地下鉄四つ橋線 四ツ橋駅 徒歩5分 (四ツ橋駅の賃貸事務所) |
||
| 設備詳細 |
|
||
| EV基数 | 4基 | 人荷EV基数 | 1基 |
| こだわり条件 |
|
||
| 備考 | |||
| アクセス | 新大阪駅まで電車16分 大阪駅梅田駅まで電車10分 関西空港まで電車52分、車46分 伊丹空港まで車25分 高速入口:環状線信濃橋・阿波座 |
||
この物件の募集フロア
ゼント心斎橋(旧ヒューリック心斎橋)
- この物件へのお問い合わせはこちら


〒541-0048
大阪市中央区瓦町3丁目4番3号
瓦町公洋ビル6階
TEL:06-6231-4600
FAX:06-6231-4630
- 電話で取り急ぎ物件情報を聞く

- 物件コード:A205404
- 物件コードを電話でお伝えください






