KUS博労町(旧AY) /7階 26.3坪 物件コード:A204406
- 電話で取り急ぎ物件情報を聞く
- 0120-366-200
- 物件コードを電話でお伝えください
物件コード:A204406


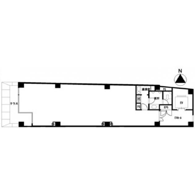
間取り図
おすすめポイント

- KUS博労町ビルは御堂筋から少し西へ入ったとことにある9階建てのテナントビルです。1994年竣工で新耐震基準に適合している建物です。2階の角丸の大きな窓がユニークで印象的、外観のデザインに個性がありパッと目を引くビルです。
ストリートビューを表示 ▼
- この物件の賃料の価格帯(共益費込)
- この部屋は成約済みです
KUS博労町(旧AY) のその他の募集階
|
|
賃料はこの物件の価格帯を表示しています。詳しい情報は電話・メールでお問い合わせください!
物件概要
| 物件名 | KUS博労町(旧AY) | ||
|---|---|---|---|
| 住所 | 大阪府大阪市中央区博労町4丁目3番2号 | ||
| 構造 (規模) | 鉄骨鉄筋コンクリート造地上9階建 | ||
| 坪数 | 26.3坪 | 築年月 | 1992年6月1日 |
| 階数 | 7階 | 空調タイプ | 個別 |
| 保証金 | - | ||
| 敷金 | - | 礼金 | - |
| 沿線・最寄駅 |
地下鉄御堂筋線 心斎橋駅 徒歩5分 (心斎橋駅の賃貸事務所) 地下鉄長堀鶴見緑地線 心斎橋駅 徒歩5分 (心斎橋駅の賃貸事務所) 地下鉄御堂筋線 本町駅 徒歩6分 (本町駅の賃貸事務所) |
||
| 設備詳細 |
|
||
| EV基数 | 1基 | 人荷EV基数 | - |
| こだわり条件 |
|
||
| 備考 | |||
| アクセス | 新大阪駅まで電車15分 大阪駅梅田駅まで電車9分 関西空港まで電車51分、車46分 伊丹空港まで車22分 高速入口:環状線信濃橋・阿波座・長堀 入口 |
||
この物件の募集フロア
KUS博労町(旧AY)
- この物件へのお問い合わせはこちら


〒541-0048
大阪市中央区瓦町3丁目4番3号
瓦町公洋ビル6階
TEL:06-6231-4600
FAX:06-6231-4630
- 電話で取り急ぎ物件情報を聞く

- 物件コード:A204406
- 物件コードを電話でお伝えください
類似物件のご紹介
「KUS博労町(旧AY) 」とエリア、賃料、広さが類似した物件をご紹介しております。
おおきにkokodesu瓦町4丁目
- 大阪府大阪市中央区瓦町4丁目4番8号
- 24.8坪(81.98m²)
- @8,001円/坪
~@12,000円/坪 -
地下鉄御堂筋線 本町駅 徒歩3分
地下鉄中央線 本町駅 徒歩5分
StoRK北堀江
- 大阪府大阪市西区北堀江1丁目5番8号
- 23.71坪(78.38m²)
- @8,001円/坪
~@12,000円/坪 -
地下鉄四つ橋線 四ツ橋駅 徒歩1分
地下鉄御堂筋線 心斎橋駅 徒歩3分
AXIS南船場(旧長堀橋アーバンライフ)
- 大阪府大阪市中央区南船場1丁目18番24号
- 21.85坪(72.23m²)
- @8,001円/坪
~@12,000円/坪 -
地下鉄堺筋線 長堀橋駅 徒歩1分
地下鉄長堀鶴見緑地線 長堀橋駅 徒歩1分






