松浦堺筋本町/4階 12.87坪 物件コード:A201129
- 電話で取り急ぎ物件情報を聞く
- 0120-366-200
- 物件コードを電話でお伝えください
物件コード:A201129


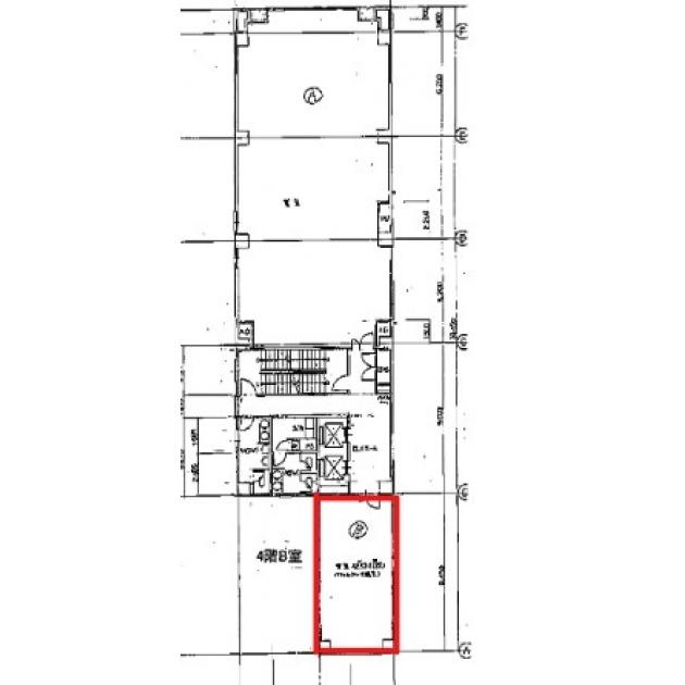
間取り図
おすすめポイント

- 中央大通りに面し、視認性も良好なオフィスビル。大阪メトロ堺筋本町駅6号出口すぐ前の傘いらずの好立地です。御堂筋線本町駅へも徒歩圏内で交通アクセスが便利です。共用部は清潔感がありさっぱりとした印象。コストパフォーマンスの良い物件です。
ストリートビューを表示 ▼
- この物件の賃料の価格帯(共益費込)
- この部屋は成約済みです
松浦堺筋本町のその他の募集階
|
|
賃料はこの物件の価格帯を表示しています。詳しい情報は電話・メールでお問い合わせください!
物件概要
| 物件名 | 松浦堺筋本町 | ||
|---|---|---|---|
| 住所 | 大阪府大阪市中央区久太郎町1丁目9番28号 | ||
| 構造 (規模) | 鉄骨鉄筋コンクリート造地上10階地下1階建 | ||
| 坪数 | 12.87坪 | 築年月 | 1987年8月1日 |
| 階数 | 4階 | 空調タイプ | 個別 |
| 保証金 | - | ||
| 敷金 | - | 礼金 | - |
| 沿線・最寄駅 |
地下鉄堺筋線 堺筋本町駅 徒歩1分 (堺筋本町駅の賃貸事務所) 地下鉄中央線 堺筋本町駅 徒歩1分 (堺筋本町駅の賃貸事務所) 地下鉄御堂筋線 本町駅 徒歩7分 (本町駅の賃貸事務所) |
||
| 設備詳細 |
|
||
| EV基数 | 2基 | 人荷EV基数 | - |
| こだわり条件 |
|
||
| 備考 | 中央大通り面す駅近オフィス。大通側約54坪、南側約12坪のセンターコア。貸会議室も完備。 | ||
| アクセス | 新大阪駅まで電車15分 大阪駅梅田駅まで電車9分 関西空港まで電車54分、車48分 伊丹空港まで車20分 高速入口:環状線信濃橋・阿波座・長堀 入口 |
||
この物件の募集フロア
松浦堺筋本町
- この物件へのお問い合わせはこちら


〒541-0048
大阪市中央区瓦町3丁目4番3号
瓦町公洋ビル6階
TEL:06-6231-4600
FAX:06-6231-4630
- 電話で取り急ぎ物件情報を聞く

- 物件コード:A201129
- 物件コードを電話でお伝えください
類似物件のご紹介
「松浦堺筋本町」とエリア、賃料、広さが類似した物件をご紹介しております。
アーバンフラッツ瓦町(旧エスティメゾン瓦町)
- 大阪府大阪市中央区瓦町3丁目2番10号
- 10.86坪(35.90m²)
- @8,001円/坪
~@12,000円/坪 -
地下鉄御堂筋線 本町駅 徒歩6分
地下鉄堺筋線 堺筋本町駅 徒歩6分
本町アーバンライフ
- 大阪府大阪市中央区北久宝寺町4丁目3番8号
- 13.11坪(43.34m²)
- @8,001円/坪
~@12,000円/坪 -
地下鉄御堂筋線 本町駅 徒歩3分
地下鉄中央線 本町駅 徒歩3分
リアライズ堺筋本町(旧:三星中央)
- 大阪府大阪市中央区久太郎町1丁目5番31号
- 10.79坪(35.67m²)
- @8,001円/坪
~@12,000円/坪 -
地下鉄堺筋線 堺筋本町駅 徒歩3分
地下鉄中央線 堺筋本町駅 徒歩3分
堺筋MS第2
- 大阪府大阪市中央区博労町1丁目9番8号
- 15.19坪(50.21m²)
- @8,001円/坪
~@12,000円/坪 -
地下鉄堺筋線 長堀橋駅 徒歩4分
地下鉄長堀鶴見緑地線 長堀橋駅 徒歩4分






