シャンクレール本町/2階 19.23坪 物件コード:A201115
- 電話で取り急ぎ物件情報を聞く
- 0120-366-200
- 物件コードを電話でお伝えください
物件コード:A201115


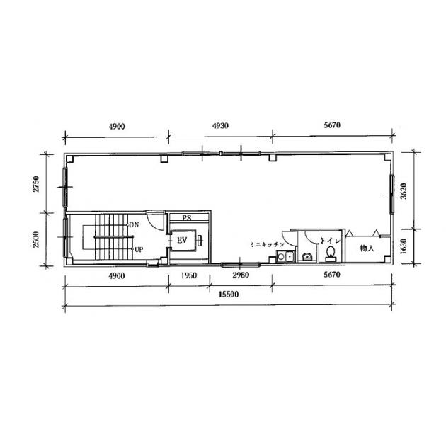
間取り図
おすすめポイント

- 大阪メトロ堺筋線、中央線、それぞれ堺筋本町駅からすぐの好立地。御堂筋線本町駅からも徒歩圏内。西向きに建つテナントビルです。各階20坪弱程度の手ごろな広さ、使い勝手のよいワンフロアワンテナントです。1階は飲食店が入居中です。
ストリートビューを表示 ▼
- この物件の賃料の価格帯(共益費込)
- @3,000円/坪~@8,000円/坪
シャンクレール本町のその他の募集階
|
|
賃料はこの物件の価格帯を表示しています。詳しい情報は電話・メールでお問い合わせください!
物件概要
| 物件名 | シャンクレール本町 | ||
|---|---|---|---|
| 住所 | 大阪府大阪市中央区久太郎町1丁目6番21号
本町・堺筋本町でよく検索されるその他の物件 |
||
| 構造 (規模) | 鉄骨造地上6階地下1階 | ||
| 坪数 | 19.23坪 | 築年月 | 1979年8月1日 |
| 階数 | 2階 | 空調タイプ | 個別 |
| 保証金 | - | ||
| 敷金 | 賃料の3カ月分 | 礼金 | 賃料の2カ月分 |
| 沿線・最寄駅 |
地下鉄堺筋線 堺筋本町駅 徒歩2分 (堺筋本町駅の賃貸事務所) 地下鉄中央線 堺筋本町駅 徒歩2分 (堺筋本町駅の賃貸事務所) 地下鉄御堂筋線 本町駅 徒歩8分 (本町駅の賃貸事務所) |
||
| 設備詳細 |
|
||
| EV基数 | 1基 | 人荷EV基数 | - |
| こだわり条件 |
|
||
| 備考 | 2001年11月全面改装済のワンフロアワンテナント | ||
| アクセス | 新大阪駅まで電車17分 大阪駅梅田駅まで電車11分 関西空港まで電車55分、車48分 伊丹空港まで車20分 高速入口:環状線信濃橋・阿波座・長堀 入口 |
||
この物件の募集フロア
シャンクレール本町
- この物件へのお問い合わせはこちら


〒541-0048
大阪市中央区瓦町3丁目4番3号
瓦町公洋ビル6階
TEL:06-6231-4600
FAX:06-6231-4630
- 電話で取り急ぎ物件情報を聞く

- 物件コード:A201115
- 物件コードを電話でお伝えください
類似物件のご紹介
「シャンクレール本町」とエリア、賃料、広さが類似した物件をご紹介しております。
イワタニ第4(旧サンメリー)
- 大阪府大阪市中央区本町3丁目1番2号
- 19.96坪(65.98m²)
- @3,000円/坪
~@8,000円/坪 -
地下鉄御堂筋線 本町駅 徒歩3分
地下鉄堺筋線 堺筋本町駅 徒歩3分






