センバセントラル/9階 154.66坪 物件コード:A111208
- 電話で取り急ぎ物件情報を聞く
- 0120-366-200
- 物件コードを電話でお伝えください
物件コード:A111208


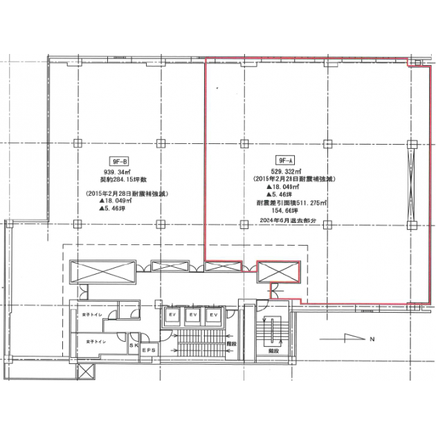
間取り図
おすすめポイント

- ビル名の通り船場のど真ん中、本町通に面しています。本町駅と堺筋本町駅のちょうど中間点あたりに位置する大型オフィスビルです。高級感あるゆったりとしたエントランスが出迎えてくれます。1階には銀行が入居中。周辺にはコンビニや飲食店が数多くあり、便利な立地です。
ストリートビューを表示 ▼
- この物件の賃料の価格帯(共益費込)
- この部屋は成約済みです
センバセントラルのその他の募集階
賃料はこの物件の価格帯を表示しています。詳しい情報は電話・メールでお問い合わせください!
物件概要
| 物件名 | センバセントラル | ||
|---|---|---|---|
| 住所 | 大阪府大阪市中央区本町2丁目6番8号 | ||
| 構造 (規模) | 鉄骨鉄筋コンクリート造9階建 地下 2 階 | ||
| 坪数 | 154.66坪 | 築年月 | 1969年1月1日 |
| 階数 | 9階 | 空調タイプ | 個別 |
| 保証金 | - | ||
| 敷金 | - | 礼金 | - |
| 沿線・最寄駅 |
地下鉄堺筋線 堺筋本町駅 徒歩2分 (堺筋本町駅の賃貸事務所) 地下鉄中央線 堺筋本町駅 徒歩3分 (堺筋本町駅の賃貸事務所) 地下鉄御堂筋線 本町駅 徒歩4分 (本町駅の賃貸事務所) |
||
| 設備詳細 |
|
||
| EV基数 | 3基 | 人荷EV基数 | - |
| こだわり条件 |
|
||
| 備考 | 耐震補強工事済、新耐震基準適合物件です。 | ||
| アクセス | 新大阪駅まで電車19分 大阪駅梅田駅まで電車13分 関西空港まで電車50分、車48分 伊丹空港まで車20分 高速入口:環状線信濃橋・阿波座 |
||
この物件の募集フロア
センバセントラル
- この物件へのお問い合わせはこちら


〒541-0048
大阪市中央区瓦町3丁目4番3号
瓦町公洋ビル6階
TEL:06-6231-4600
FAX:06-6231-4630
- 電話で取り急ぎ物件情報を聞く

- 物件コード:A111208
- 物件コードを電話でお伝えください
類似物件のご紹介
「センバセントラル」とエリア、賃料、広さが類似した物件をご紹介しております。
住宅金融支援機構・矢野
- 大阪府大阪市中央区南本町4丁目5番20号
- 149.72坪(494.94m²)
- @12,001円/坪
~@15,000円/坪 -
地下鉄御堂筋線 本町駅 徒歩2分
地下鉄中央線 本町駅 徒歩2分






