新瓦町/5階 286.55坪 物件コード:A108220
- 電話で取り急ぎ物件情報を聞く
- 0120-366-200
- 物件コードを電話でお伝えください
物件コード:A108220


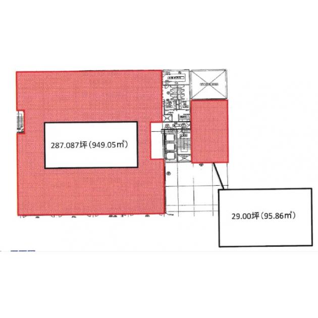
間取り図
おすすめポイント

- 耐震要素をデザインに組み込みグレードアップしたオフィスビル。エントランスは内部との連続性を表現し、まわりに設けたベンチやサインなども外観に合わせたデザインとなっている。貸室も30坪程からワンフロア300坪越えまでご提案可能です。
ストリートビューを表示 ▼
- この物件の賃料の価格帯(共益費込)
- @12,001円/坪~@15,000円/坪
新瓦町のその他の募集階
賃料はこの物件の価格帯を表示しています。詳しい情報は電話・メールでお問い合わせください!
物件概要
| 物件名 | 新瓦町 | ||
|---|---|---|---|
| 住所 | 大阪府大阪市中央区瓦町2丁目4番7号
淀屋橋・北浜・本町・堺筋本町でよく検索されるその他の物件 |
||
| 構造 (規模) | 鉄骨鉄筋コンクリート造地上8階建 | ||
| 坪数 | 286.55坪 | 築年月 | 1979年7月1日 |
| 階数 | 5階 | 空調タイプ | 個別 |
| 保証金 | - | ||
| 敷金 | 賃料の12カ月分 | 礼金 | - |
| 沿線・最寄駅 |
地下鉄堺筋線 堺筋本町駅 徒歩4分 (堺筋本町駅の賃貸事務所) 地下鉄中央線 堺筋本町駅 徒歩6分 (堺筋本町駅の賃貸事務所) 地下鉄御堂筋線 本町駅 徒歩7分 (本町駅の賃貸事務所) |
||
| 設備詳細 |
|
||
| EV基数 | 3基 | 人荷EV基数 | - |
| こだわり条件 |
|
||
| 備考 | ・耐震補強済 ・エレベーター3基 ・天井高2.5m ・2009年共用部リニューアル ・駐輪場 |
||
| アクセス | 新大阪駅まで電車16分 大阪駅梅田駅まで電車10分 関西空港まで電車55分、車47分 伊丹空港まで車20分 高速入口:環状線高麗橋 |
||
この物件の募集フロア
- この物件へのお問い合わせはこちら


〒541-0048
大阪市中央区瓦町3丁目4番3号
瓦町公洋ビル6階
TEL:06-6231-4600
FAX:06-6231-4630
- 電話で取り急ぎ物件情報を聞く

- 物件コード:A108220
- 物件コードを電話でお伝えください
類似物件のご紹介
「新瓦町」とエリア、賃料、広さが類似した物件をご紹介しております。






