平一/6階 32.49坪 物件コード:A106112
- 電話で取り急ぎ物件情報を聞く
- 0120-366-200
- 物件コードを電話でお伝えください
物件コード:A106112


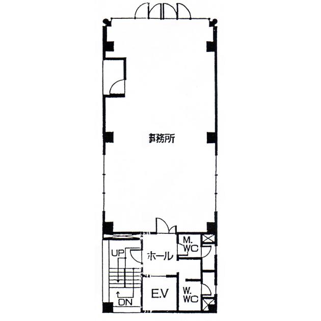
間取り図
おすすめポイント

- 平一ビルは、設備の整ったワンフロアーワンテナントの美築コンパクトオフィス。最寄り駅は堺筋線の北浜駅から徒歩4分です。管理も良好で長年ご入居されているテナント様も多数いらっしゃいます。オートロック設備もついているのでセキュリティも万全。1階にはネパール&インド料理のお店が入居中。
ストリートビューを表示 ▼
- この物件の賃料の価格帯(共益費込)
- この部屋は成約済みです
平一のその他の募集階
賃料はこの物件の価格帯を表示しています。詳しい情報は電話・メールでお問い合わせください!
物件概要
| 物件名 | 平一 | ||
|---|---|---|---|
| 住所 | 大阪府大阪市中央区平野町1丁目6番11号 | ||
| 構造 (規模) | 鉄骨造陸屋根地上9階建 | ||
| 坪数 | 32.49坪 | 築年月 | 1993年8月1日 |
| 階数 | 6階 | 空調タイプ | 個別 |
| 保証金 | - | ||
| 敷金 | - | 礼金 | - |
| 沿線・最寄駅 |
地下鉄堺筋線 北浜駅 徒歩4分 (北浜駅の賃貸事務所) 京阪線(本線・中之島線) 北浜駅 徒歩6分 (北浜駅の賃貸事務所) 地下鉄堺筋線 堺筋本町駅 徒歩7分 (堺筋本町駅の賃貸事務所) |
||
| 設備詳細 |
|
||
| EV基数 | 1基 | 人荷EV基数 | - |
| こだわり条件 |
|
||
| 備考 | ・新耐震基準適合 ・1フロア1テナント ・オートロック |
||
| アクセス | 新大阪駅まで電車16分 大阪駅梅田駅まで電車11分 関西空港まで電車54分、車44分 伊丹空港まで車25分 高速入口:環状線高麗橋入口 |
||
この物件の募集フロア
平一
- この物件へのお問い合わせはこちら


〒541-0048
大阪市中央区瓦町3丁目4番3号
瓦町公洋ビル6階
TEL:06-6231-4600
FAX:06-6231-4630
- 電話で取り急ぎ物件情報を聞く

- 物件コード:A106112
- 物件コードを電話でお伝えください
類似物件のご紹介
「平一」とエリア、賃料、広さが類似した物件をご紹介しております。
イシモト
- 大阪府大阪市中央区平野町2丁目2番8号
- 36.84坪(121.79m²)
- @8,001円/坪
~@12,000円/坪 -
地下鉄堺筋線 北浜駅 徒歩3分
京阪線(本線・中之島線) 北浜駅 徒歩5分
トヤマ中央館(新トヤマ)
- 大阪府大阪市中央区安土町1丁目7番20号
- 31.64坪(104.60m²)
- @8,001円/坪
~@12,000円/坪 -
地下鉄堺筋線 堺筋本町駅 徒歩1分
地下鉄中央線 堺筋本町駅 徒歩3分
池田ビル3号館
- 大阪府大阪市中央区久太郎町2丁目5番10号
- 38.25坪(126.45m²)
- @8,001円/坪
~@12,000円/坪 -
地下鉄堺筋線 堺筋本町駅 徒歩2分
地下鉄中央線 堺筋本町駅 徒歩2分
アクアタワー
- 大阪府大阪市中央区北浜東6番6号
- 38.45坪(127.11m²)
- @8,001円/坪
~@12,000円/坪 -
京阪線(本線・中之島線) 天満橋駅 徒歩3分
地下鉄谷町線 天満橋駅 徒歩4分
南本町エクセル
- 大阪府大阪市中央区久太郎町3丁目2番10号
- 35.95坪(118.84m²)
- @8,001円/坪
~@12,000円/坪 -
地下鉄御堂筋線 本町駅 徒歩3分
地下鉄中央線 本町駅 徒歩3分






