伏見町KY/10階 25.41坪 物件コード:A104302
- 電話で取り急ぎ物件情報を聞く
- 0120-366-200
- 物件コードを電話でお伝えください
物件コード:A104302


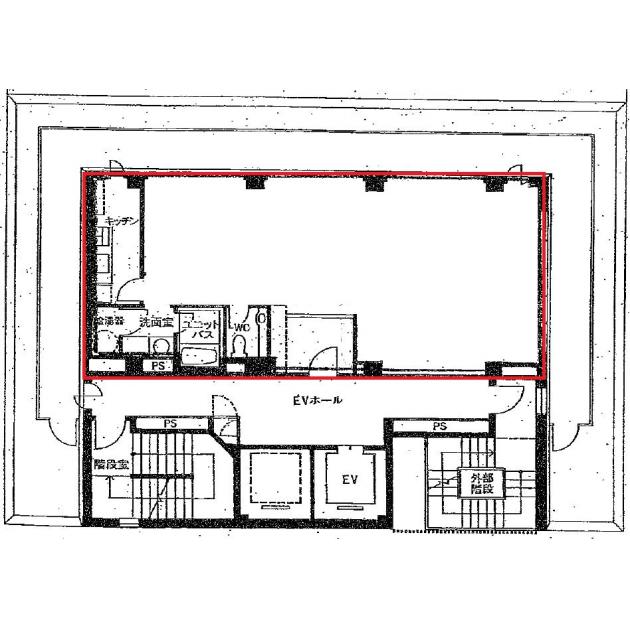
間取り図
おすすめポイント

- 伏見町KYビルは、センスの良いスマートなフォルムのビルです。白を基調とした共用部が上級のオフィス空間を演出しています。ワンフロアーワンテナントを基準として貸出をしております。貸室は綺麗な形をしているので、レイアウトがしやすいです。
ストリートビューを表示 ▼
- この物件の賃料の価格帯(共益費込)
- この部屋は成約済みです
伏見町KYのその他の募集階
|
|
賃料はこの物件の価格帯を表示しています。詳しい情報は電話・メールでお問い合わせください!
物件概要
| 物件名 | 伏見町KY | ||
|---|---|---|---|
| 住所 | 大阪府大阪市中央区伏見町3丁目2番6号 | ||
| 構造 (規模) | 鉄骨鉄筋コンクリート造地上11階地下1階建 | ||
| 坪数 | 25.41坪 | 築年月 | 1993年5月31日 |
| 階数 | 10階 | 空調タイプ | 個別 |
| 保証金 | - | ||
| 敷金 | - | 礼金 | - |
| 沿線・最寄駅 |
地下鉄御堂筋線 淀屋橋駅 徒歩3分 (淀屋橋駅の賃貸事務所) 地下鉄堺筋線 北浜駅 徒歩4分 (北浜駅の賃貸事務所) 京阪線(本線・中之島線) 淀屋橋駅 徒歩5分 (淀屋橋駅の賃貸事務所) |
||
| 設備詳細 |
|
||
| EV基数 | 2基 | 人荷EV基数 | - |
| こだわり条件 |
|
||
| 備考 | ・新耐震基準適合 ・天高2.6m ・駐輪場有り |
||
| アクセス | 新大阪駅まで電車12分 大阪駅梅田駅まで電車6分 関西空港まで電車54分、車52分 伊丹空港まで車22分 高速入口:環状線高麗橋入口 |
||
この物件の募集フロア
伏見町KY
- この物件へのお問い合わせはこちら


〒541-0048
大阪市中央区瓦町3丁目4番3号
瓦町公洋ビル6階
TEL:06-6231-4600
FAX:06-6231-4630
- 電話で取り急ぎ物件情報を聞く

- 物件コード:A104302
- 物件コードを電話でお伝えください
類似物件のご紹介
「伏見町KY」とエリア、賃料、広さが類似した物件をご紹介しております。
平野町八千代
- 大阪府大阪市中央区平野町1丁目8番13号
- 24.05坪(79.50m²)
- @12,001円/坪
~@15,000円/坪 -
地下鉄堺筋線 北浜駅 徒歩2分
京阪線(本線・中之島線) 北浜駅 徒歩4分
北浜藤浪
- 大阪府大阪市中央区北浜2丁目1番13号
- 22.07坪(72.96m²)
- @12,001円/坪
~@15,000円/坪 -
地下鉄堺筋線 北浜駅 徒歩1分
京阪線(本線・中之島線) 北浜駅 徒歩1分
グロース北浜ビルディング(旧今川)
- 大阪府大阪市中央区今橋2丁目2番17号
- 20.45坪(67.60m²)
- @12,001円/坪
~@15,000円/坪 -
地下鉄堺筋線 北浜駅 徒歩2分
京阪線(本線・中之島線) 北浜駅 徒歩2分
日本文化会館
- 大阪府大阪市中央区北浜2丁目1番23号
- 23.18坪(76.63m²)
- @12,001円/坪
~@15,000円/坪 -
地下鉄堺筋線 北浜駅 徒歩1分
京阪線(本線・中之島線) 北浜駅 徒歩1分
クリオ平野町
- 大阪府大阪市中央区平野町1丁目7番10号
- 25.47坪(84.20m²)
- @12,001円/坪
~@15,000円/坪 -
地下鉄堺筋線 北浜駅 徒歩3分
京阪線(本線・中之島線) 北浜駅 徒歩5分
グロース北浜ビルディング(旧今川)
- 大阪府大阪市中央区今橋2丁目2番17号
- 20.45坪(67.60m²)
- @12,001円/坪
~@15,000円/坪 -
地下鉄堺筋線 北浜駅 徒歩2分
京阪線(本線・中之島線) 北浜駅 徒歩2分






