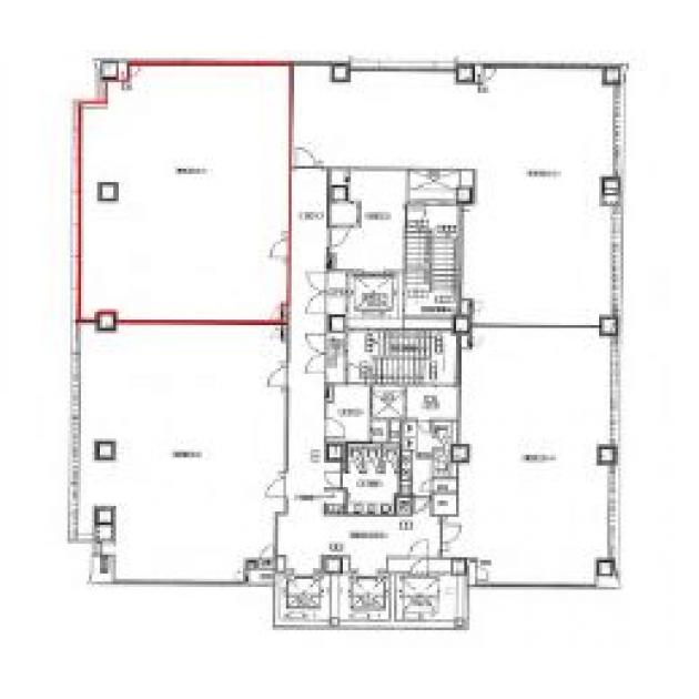
アステリオ北堀江/3階 41坪 物件コード:B204166
- 電話で取り急ぎ物件情報を聞く
- 0120-366-200
- 物件コードを電話でお伝えください
物件コード:B204166
ストリートビューを表示 ▼
- この物件の賃料の価格帯(共益費込)
- この部屋は成約済みです
アステリオ北堀江のその他の募集階
賃料はこの物件の価格帯を表示しています。詳しい情報は電話・メールでお問い合わせください!
物件概要
| 物件名 | アステリオ北堀江 | ||
|---|---|---|---|
| 住所 | 大阪府大阪市西区北堀江1丁目2番19号 | ||
| 構造 (規模) | 鉄骨・鉄骨鉄筋コンクリート造地上22階地下1階建 | ||
| 坪数 | 41坪 | 築年月 | 2009年2月1日 |
| 階数 | 3階 | 空調タイプ | 個別 |
| 保証金 | - | ||
| 敷金 | - | 礼金 | - |
| 沿線・最寄駅 |
地下鉄四つ橋線 四ツ橋駅 徒歩1分 (四ツ橋駅の賃貸事務所) 地下鉄御堂筋線 心斎橋駅 徒歩3分 (心斎橋駅の賃貸事務所) 地下鉄長堀鶴見緑地線 西大橋駅 徒歩5分 (西大橋駅の賃貸事務所) |
||
| 設備詳細 |
|
||
| EV基数 | 3基 | 人荷EV基数 | 1基 |
| こだわり条件 |
|
||
| 備考 | |||
| アクセス | 新大阪駅まで電車17分 大阪駅梅田駅まで電車11分 関西空港まで電車56分、車45分 伊丹空港まで車20分 高速入口:環状線四ツ橋・阿波座・湊町入口 |
||
この物件の募集フロア
アステリオ北堀江
- この物件へのお問い合わせはこちら


〒541-0048
大阪市中央区瓦町3丁目4番3号
瓦町公洋ビル6階
TEL:06-6231-4600
FAX:06-6231-4630
- 電話で取り急ぎ物件情報を聞く

- 物件コード:B204166
- 物件コードを電話でお伝えください
類似物件のご紹介
「アステリオ北堀江」とエリア、賃料、広さが類似した物件をご紹介しております。
United Bld minamisenba
- 大阪府大阪市中央区南船場4丁目10番19号
- 40.01坪(132.26m²)
- @20,001円/坪
~@30,000円/坪 -
地下鉄御堂筋線 心斎橋駅 徒歩3分
地下鉄四つ橋線 四ツ橋駅 徒歩3分
四ツ橋スター
- 大阪府大阪市西区南堀江1丁目12番19号
- 45.25坪(149.59m²)
- @8,001円/坪
~@12,000円/坪 -
地下鉄四つ橋線 四ツ橋駅 徒歩2分
地下鉄御堂筋線 心斎橋駅 徒歩8分
エイチツーオー第1
- 大阪府大阪市西区北堀江1丁目4番14号
- 37.9坪(125.29m²)
- @8,001円/坪
~@12,000円/坪 -
地下鉄四つ橋線 四ツ橋駅 徒歩1分
地下鉄御堂筋線 心斎橋駅 徒歩4分
四ツ橋グランド(旧ニッケ四ツ橋)
- 大阪府大阪市西区新町1丁目4番26号
- 40.32坪(133.29m²)
- @12,001円/坪
~@15,000円/坪 -
地下鉄四つ橋線 四ツ橋駅 徒歩1分
地下鉄長堀鶴見緑地線 心斎橋駅 徒歩2分
TRN心斎橋(旧スマイルステップ)
- 大阪府大阪市中央区西心斎橋2丁目10番32号
- 46.29坪(153.02m²)
- @30,001円/坪以上
-
地下鉄御堂筋線 心斎橋駅 徒歩3分
地下鉄四つ橋線 四ツ橋駅 徒歩5分









