お気に入りを解除しました。
DAISAKU AM
物件番号:C104013
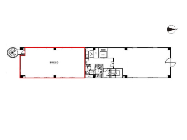
5階29坪

- この物件の賃料の価格帯(共益費込)
- 坪@8,001円~@12,000円
| 物件名 | DAISAKU AM 【このビルのその他の募集階】 |
||
|---|---|---|---|
| 住所 | 大阪府大阪市北区菅原町11番11号 南森町でよく検索されるその他の物件 |
||
| 構造(規模) | 鉄骨・鉄骨鉄筋コンクリート造地下1階付地上10階建 | ||
| 築年月 | 1989年3月 | ||
| 坪数 |
29坪 |
||
| 階数 | 5階 | ||
| 保証金 | |||
| 敷金 | 賃料の3カ月分 | ||
| 礼金 | 賃料の3カ月分 | ||
| 沿線 最寄駅 |
地下鉄谷町線 南森町駅 徒歩8分 (南森町駅の賃貸事務所) 地下鉄堺筋線 南森町駅 徒歩8分 (南森町駅の賃貸事務所) JR東西線 大阪天満宮駅 徒歩8分 (大阪天満宮駅の賃貸事務所) |
||
| アクセス | 新大阪駅まで電車24分 大阪駅梅田駅まで電車18分 関西空港まで電車59分、車45分 伊丹空港まで車20分 高速入口:環状線南森町・扇町・高麗橋入口 |
||
| EV基数 | 1基 | 人荷EV基数 | - |
| 空調タイプ | 個別 | ||
| 備考 | |||

北浜駅と南森町駅が利用可能な立地にあるオフィスビル。共用部やエレベーターのリニューアルもしており、過ごしやすいビルです。
天満橋に近く春には桜の並木道が綺麗で夏は天神祭りの活気が感じられます。
- お電話でお問い合わせ(無料)
-
平日13時までのお問い合わせで
当日に物件をご紹介!
お電話の場合「物件番号:C104013」
をお伝えください
