お気に入りを解除しました。
TPR北浜(旧O.C.S淡路町)
物件番号:A107121
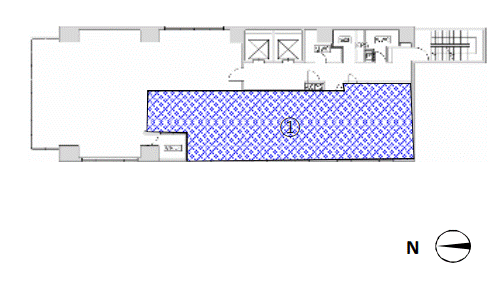
9階28.7坪

- この物件の賃料の価格帯(共益費込)
- 坪@8,001円~@12,000円
| 物件名 | TPR北浜(旧O.C.S淡路町) 【このビルのその他の募集階】 |
||
|---|---|---|---|
| 住所 | 大阪府大阪市中央区淡路町1丁目4番9号 淀屋橋・北浜・本町・堺筋本町でよく検索されるその他の物件 |
||
| 構造(規模) | 鉄骨造地上11階地下1階建 | ||
| 築年月 | 2011年1月1日 | ||
| 坪数 |
28.7坪 |
||
| 階数 | 9階 | ||
| 保証金 | |||
| 敷金 | 賃料の12カ月分 | ||
| 礼金 | - | ||
| 沿線 最寄駅 |
地下鉄堺筋線 北浜駅 徒歩5分 (北浜駅の賃貸事務所) 地下鉄堺筋線 堺筋本町駅 徒歩6分 (堺筋本町駅の賃貸事務所) 京阪線(本線・中之島線) 北浜駅 徒歩6分 (北浜駅の賃貸事務所) |
||
| アクセス | 新大阪駅まで電車17分 大阪駅梅田駅まで電車12分 関西空港まで電車54分、車50分 伊丹空港まで車24分 高速入口:環状線 高麗橋入口 |
||
| EV基数 | 2基 | 人荷EV基数 | - |
| 空調タイプ | 個別 | ||
| 備考 | ・新耐震基準適合 ・オートロック ・駐輪場有り |
||
2011年竣工のインテリジェントビル。道路に面する大きな窓は存在感があります。またオフィス機能も細部までこだわっており一見の価値があり。スタイリッシュな企業イメージを希望するテナント様にオススメです。
- お電話でお問い合わせ(無料)
-
平日13時までのお問い合わせで
当日に物件をご紹介!
お電話の場合「物件番号:A107121」
をお伝えください
