お気に入りを解除しました。
辻井
物件番号:A108302
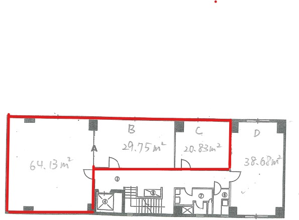
2階34.7坪

- この物件の賃料の価格帯(共益費込)
- 坪@8,001円~@12,000円
| 物件名 | 辻井 【このビルのその他の募集階】 |
||
|---|---|---|---|
| 住所 | 大阪府大阪市中央区瓦町3丁目2番5号 淀屋橋・北浜・本町・堺筋本町でよく検索されるその他の物件 |
||
| 構造(規模) | 鉄筋コンクリート造地上7階地下1階建 | ||
| 築年月 | 1973年5月1日 | ||
| 坪数 |
34.7坪 |
||
| 階数 | 2階 | ||
| 保証金 | |||
| 敷金 | 賃料の3カ月分 | ||
| 礼金 | 賃料の2カ月分 | ||
| 沿線 最寄駅 |
地下鉄御堂筋線 本町駅 徒歩6分 (本町駅の賃貸事務所) 地下鉄堺筋線 堺筋本町駅 徒歩6分 (堺筋本町駅の賃貸事務所) 地下鉄中央線 本町駅 徒歩8分 (本町駅の賃貸事務所) |
||
| アクセス | 新大阪駅まで電車17分 大阪駅梅田駅まで電車11分 関西空港まで電車56分、車47分 伊丹空港まで車25分 高速入口:環状線高麗橋・信濃橋・阿波座入口 |
||
| EV基数 | 1基 | 人荷EV基数 | - |
| 空調タイプ | 個別 | ||
| 備考 | |||
最寄り駅本町のオフィスビル。1階は管理会社が入居しているので安心してご入居頂けます。6坪からワンフロア約40坪までバリエーション豊富な広さのお部屋がご提案可能です。
- お電話でお問い合わせ(無料)
-
平日13時までのお問い合わせで
当日に物件をご紹介!
お電話の場合「物件番号:A108302」
をお伝えください

