お気に入りを解除しました。
VIP関西センター
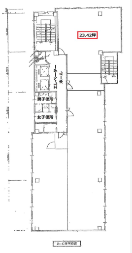
物件番号:A101217
2階23.42坪
- この物件の賃料の価格帯(共益費込)
- 坪@8,001円~@12,000円
| 物件名 | VIP関西センター 【このビルのその他の募集階】 |
||
|---|---|---|---|
| 住所 | 大阪府大阪市中央区北浜2丁目3番10号 淀屋橋・北浜でよく検索されるその他の物件 |
||
| 構造(規模) | 鉄骨造地上9階建 | ||
| 築年月 | 1976年2月 | ||
| 坪数 |
23.42坪 |
||
| 階数 | 2階 | ||
| 保証金 | |||
| 敷金 | 賃料の6カ月分 | ||
| 礼金 | - | ||
| 沿線 最寄駅 |
地下鉄堺筋線 北浜駅 徒歩1分 (北浜駅の賃貸事務所) 京阪線(本線・中之島線) 北浜駅 徒歩1分 (北浜駅の賃貸事務所) 地下鉄御堂筋線 淀屋橋駅 徒歩4分 (淀屋橋駅の賃貸事務所) |
||
| アクセス | 新大阪駅まで電車13分 大阪駅梅田駅まで電車6分 関西空港まで電車51分、車46分 伊丹空港まで車19分 |
||
| EV基数 | 2基 | 人荷EV基数 | - |
| 空調タイプ | 個別 | ||
| 備考 | |||

VIP関西センタービルは北浜駅徒歩1分の立地に位置するビルです。エレベーターが2基あるため、出退勤時にエレベーターが混むこともないので、ストレスなくご利用頂けます。
また、北浜駅の出口は目の前にあるため交通の便がいいビルです。
- お電話でお問い合わせ(無料)
-
平日13時までのお問い合わせで
当日に物件をご紹介!
お電話の場合「物件番号:A101217」
をお伝えください

