お気に入りを解除しました。
VA第一
物件番号:C416207
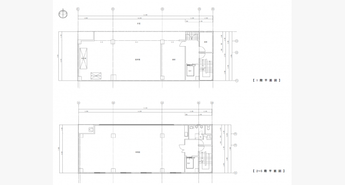
4階38.01坪

- この物件の賃料の価格帯(共益費込)
- 坪@8,001円~@12,000円
| 物件名 | VA第一 【このビルのその他の募集階】 |
||
|---|---|---|---|
| 住所 | 大阪府大阪市北区本庄西2丁目12番16号 梅田でよく検索されるその他の物件 |
||
| 構造(規模) | 鉄骨造陸屋根6階建 | ||
| 築年月 | 1992年4月1日 | ||
| 坪数 |
38.01坪 |
||
| 階数 | 4階 | ||
| 保証金 | |||
| 敷金 | 相談 | ||
| 礼金 | 相談 | ||
| 沿線 最寄駅 |
地下鉄御堂筋線 中津駅 徒歩9分 (中津駅の賃貸事務所) 地下鉄谷町線 中崎町駅 徒歩10分 (中崎町駅の賃貸事務所) 地下鉄谷町線 天神橋筋六丁目駅 徒歩12分 (天神橋筋六丁目駅の賃貸事務所) |
||
| アクセス | 新大阪駅まで電車16分 大阪駅梅田駅まで電車9分 関西空港まで電車80分、車55分 伊丹空港まで車25分 |
||
| EV基数 | 1基 | 人荷EV基数 | - |
| 空調タイプ | 個別 | ||
| 備考 | |||
- お電話でお問い合わせ(無料)
-
平日13時までのお問い合わせで
当日に物件をご紹介!
お電話の場合「物件番号:C416207」
をお伝えください

