お気に入りを解除しました。
フェザー
物件番号:C303109
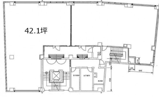
3階42.1坪

- この物件の賃料の価格帯(共益費込)
- 坪@8,001円~@12,000円
| 物件名 | フェザー 【このビルのその他の募集階】 |
||
|---|---|---|---|
| 住所 | 大阪府大阪市北区堂島1丁目5番2号 梅田・西梅田・堂島・福島でよく検索されるその他の物件 |
||
| 構造(規模) | 鉄筋コンクリート造地上5階地下1階建 | ||
| 築年月 | 1962年1月1日 | ||
| 坪数 |
42.1坪 |
||
| 階数 | 3階 | ||
| 保証金 | |||
| 敷金 | 賃料の8カ月分 | ||
| 礼金 | - | ||
| 沿線 最寄駅 |
地下鉄四つ橋線 西梅田駅 徒歩5分 (西梅田駅の賃貸事務所) JR大阪環状線 大阪駅 徒歩7分 (大阪駅の賃貸事務所) JR東西線 北新地駅 徒歩4分 (北新地駅の賃貸事務所) |
||
| アクセス | 新大阪駅まで電車13分 大阪駅梅田駅まで電車7分 関西空港まで電車58分、車45分 伊丹空港まで車20分 高速入口:環状線堂島・梅田入口 |
||
| EV基数 | 1基 | 人荷EV基数 | - |
| 空調タイプ | 個別 | ||
| 備考 | |||
大通り・四橋筋から少し入った場所にあり、外観の窓枠が印象的なオフィスビル。2003年に耐震補強工事と共用部の改装を行ったりと丁寧に管理されています。短期での賃貸借も相談可能ですので、お問い合わせ下さい。
- お電話でお問い合わせ(無料)
-
平日13時までのお問い合わせで
当日に物件をご紹介!
お電話の場合「物件番号:C303109」
をお伝えください
