お気に入りを解除しました。
大淀南安澤ビルⅡ
物件番号:C507205
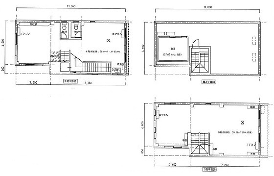
2階~3階34.24坪

- この物件の賃料の価格帯(共益費込)
- 坪@8,001円~@12,000円
| 物件名 | 大淀南安澤ビルⅡ 【このビルのその他の募集階】 |
||
|---|---|---|---|
| 住所 | 大阪府大阪市北区大淀南2丁目6番18号 梅田・西梅田・堂島・福島でよく検索されるその他の物件 |
||
| 構造(規模) | 鉄骨造 | ||
| 築年月 | 1977年12月 | ||
| 坪数 |
34.24坪 |
||
| 階数 | 2階~3階 | ||
| 保証金 | |||
| 敷金 | 賃料の1カ月分 | ||
| 礼金 | 賃料の2カ月分 | ||
| 沿線 最寄駅 |
JR大阪環状線 福島駅 徒歩7分 (福島駅の賃貸事務所) JR東西線 新福島駅 徒歩8分 (新福島駅の賃貸事務所) JR大阪環状線 大阪駅 徒歩10分 (大阪駅の賃貸事務所) |
||
| アクセス | 新大阪駅まで電車16分 大阪駅梅田駅まで電車10分 関西空港まで電車66分、車45分 伊丹空港まで車20分 高速入口:環状線堂島・梅田入口 |
||
| EV基数 | - | 人荷EV基数 | - |
| 空調タイプ | |||
| 備考 | ・屋上付きメゾネットタイプ |
||

希少な屋上付きメゾネットタイプの物件です。
JR東西線、環状線からアクセスがよく、高速の入口も近いのでお客様の多い企業様にもオススメです。
- お電話でお問い合わせ(無料)
-
平日13時までのお問い合わせで
当日に物件をご紹介!
お電話の場合「物件番号:C507205」
をお伝えください

