お気に入りを解除しました。
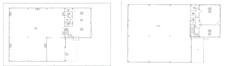
東大阪市新庄西貸倉庫事務所
物件番号:P801118
1階+2階207坪

- この物件の賃料の価格帯(共益費込)
- 坪@3,000円~@8,000円
| 物件名 | 東大阪市新庄西貸倉庫事務所 【このビルのその他の募集階】 |
||
|---|---|---|---|
| 住所 | 大阪府東大阪市新庄西10-35 でよく検索されるその他の物件 |
||
| 構造(規模) | 鉄骨造地上2階建 | ||
| 築年月 | 1992年1月 | ||
| 坪数 |
207坪 |
||
| 階数 | 1階+2階 | ||
| 保証金 | |||
| 敷金 | 賃料の6カ月分 | ||
| 礼金 | - | ||
| 沿線 最寄駅 |
|||
| アクセス | 新大阪駅まで電車48分 大阪駅梅田駅まで電車45分 関西空港まで電車60分、車55分 伊丹空港まで車37分 |
||
| EV基数 | - | 人荷EV基数 | - |
| 空調タイプ | |||
| 備考 | |||
- お電話でお問い合わせ(無料)
-
平日13時までのお問い合わせで
当日に物件をご紹介!
お電話の場合「物件番号:P801118」
をお伝えください
類似物件のご紹介
EH-NOZATO 12(一棟貸)
-
-
住所 大阪府大阪市西淀川区野里1丁目1番16号 交通 竣工 1976年9月 構造 鉄骨造地上5階建

