お気に入りを解除しました。
SL-111(1棟貸)
物件番号:I409502
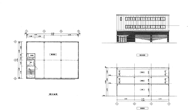
1階~3階235.04坪
1階(78.34坪)+2階(78.34坪)+3階(78.34坪)

- この物件の賃料の価格帯(共益費込)
- 坪@3,000円~@8,000円
| 物件名 | SL-111(1棟貸) 【このビルのその他の募集階】 |
||
|---|---|---|---|
| 住所 | 大阪府吹田市南吹田5丁目16番8号 江坂・千里中央・箕面でよく検索されるその他の物件 |
||
| 構造(規模) | 鉄骨造亜鉛メッキ鋼板葺地上3階建 | ||
| 築年月 | 1990年11月 | ||
| 坪数 |
235.04坪 1階(78.34坪)+2階(78.34坪)+3階(78.34坪) |
||
| 階数 | 1階~3階 | ||
| 保証金 | |||
| 敷金 | - | ||
| 礼金 | - | ||
| 沿線 最寄駅 |
地下鉄御堂筋線 江坂駅 徒歩14分 (江坂駅の賃貸事務所) |
||
| アクセス | 新大阪駅まで電車18分 大阪駅梅田駅まで電車28分 関西空港まで電車87分、車58分 伊丹空港まで車18分 |
||
| EV基数 | - | 人荷EV基数 | - |
| 空調タイプ | |||
| 備考 | |||
- お電話でお問い合わせ(無料)
-
平日13時までのお問い合わせで
当日に物件をご紹介!
お電話の場合「物件番号:I409502」
をお伝えください

