お気に入りを解除しました。
facile voieur(ファシル バルール)
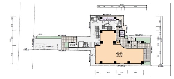
物件番号:D301103
1階56.53坪

- この物件の賃料の価格帯(共益費込)
- 坪@8,001円~@12,000円
| 物件名 | facile voieur(ファシル バルール) 【このビルのその他の募集階】 |
||
|---|---|---|---|
| 住所 | 大阪府大阪市淀川区十三本町1丁目17番24号 でよく検索されるその他の物件 |
||
| 構造(規模) | 鉄筋コンクリート造地上9階建 | ||
| 築年月 | 2024年4月 | ||
| 坪数 |
56.53坪 |
||
| 階数 | 1階 | ||
| 保証金 | |||
| 敷金 | - | ||
| 礼金 | 賃料の1カ月分 | ||
| 沿線 最寄駅 |
|||
| アクセス | 新大阪駅まで電車15分 大阪駅梅田駅まで電車11分 関西空港まで電車72分、車60分 伊丹空港まで車25分 高速入口:阪神高速 環状線姫島 |
||
| EV基数 | - | 人荷EV基数 | - |
| 空調タイプ | 個別 | ||
| 備考 | |||
- お電話でお問い合わせ(無料)
-
平日13時までのお問い合わせで
当日に物件をご紹介!
お電話の場合「物件番号:D301103」
をお伝えください
類似物件のご紹介
オークプリオタワー (旧オーク200 4番街プリオタワー)
-
-
住所 大阪府大阪市港区弁天1丁目2番30号 交通 JR大阪環状線 弁天町駅 徒歩1分
竣工 1993/3 構造 鉄骨鉄筋コンクリート造地下3階付50階建
アジア太平洋トレードセンターITM棟(ATC)
-
-
住所 大阪府大阪市住之江区南港北2丁目1番10号 交通 地下鉄中央線 コスモスクエア駅 徒歩5分
竣工 1994年4月1日 構造 鉄骨鉄筋コンクリート造地上12階地下2階塔屋1階建

