お気に入りを解除しました。
堂島セントラル
物件番号:C304104
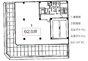
4階62.5坪

- この物件の賃料の価格帯(共益費込)
- 坪@8,001円~@12,000円
| 物件名 | 堂島セントラル 【このビルのその他の募集階】 |
||
|---|---|---|---|
| 住所 | 大阪府大阪市北区堂島浜1丁目3番18号 梅田・西梅田・堂島・福島でよく検索されるその他の物件 |
||
| 構造(規模) | 鉄骨造地上5階地下2階建 | ||
| 築年月 | 1965年8月1日 | ||
| 坪数 |
62.5坪 |
||
| 階数 | 4階 | ||
| 保証金 | |||
| 敷金 | 賃料の12カ月分 | ||
| 礼金 | - | ||
| 沿線 最寄駅 |
京阪線(本線・中之島線) 大江橋駅 徒歩3分 (大江橋駅の賃貸事務所) 地下鉄四つ橋線 西梅田駅 徒歩6分 (西梅田駅の賃貸事務所) JR東西線 北新地駅 徒歩5分 (北新地駅の賃貸事務所) |
||
| アクセス | 新大阪駅まで電車17分 大阪駅梅田駅まで電車11分 関西空港まで電車61分、車45分 伊丹空港まで車20分 高速入口:環状線堂島・中之島入口 |
||
| EV基数 | 1基 | 人荷EV基数 | - |
| 空調タイプ | 個別 | ||
| 備考 | 黒いタイル張りのシックな外観。エレベーターは1基です。最小スパンが10坪代~ワンフロア120坪までの幅広いサイズをご提供できます。 | ||

シックな黒いタイル張りの外観がインパクトのある角ビル。北新地の繁華街に近い堂島エリア東側にありながら静かで落ち着いた環境です。貸室は10坪台の手ごろなスペースから、ワンフロア100坪超のものまで幅広い区画がございます。
- お電話でお問い合わせ(無料)
-
平日13時までのお問い合わせで
当日に物件をご紹介!
お電話の場合「物件番号:C304104」
をお伝えください
