お気に入りを解除しました。
K2
物件番号:J103112
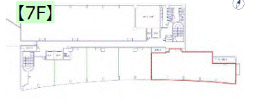
7階59.88坪

- この物件の賃料の価格帯(共益費込)
- 相談
| 物件名 | K2 【このビルのその他の募集階】 |
||
|---|---|---|---|
| 住所 | 大阪府大阪市都島区東野田町2丁目9番7号 OBP・京橋・ 森之宮でよく検索されるその他の物件 |
||
| 構造(規模) | 鉄骨鉄筋コンクリート造地上8階地下1階建 | ||
| 築年月 | 1990年3月1日 | ||
| 坪数 |
59.88坪 |
||
| 階数 | 7階 | ||
| 保証金 | |||
| 敷金 | - | ||
| 礼金 | - | ||
| 沿線 最寄駅 |
地下鉄長堀鶴見緑地線 京橋駅 徒歩1分 (京橋駅の賃貸事務所) 京阪線(本線・中之島線) 京橋駅 徒歩1分 (京橋駅の賃貸事務所) JR大阪環状線 京橋駅 徒歩1分 (京橋駅の賃貸事務所) |
||
| アクセス | 新大阪駅まで電車17分 大阪駅梅田駅まで電車10分 関西空港まで電車56分、車55分 伊丹空港まで車22分 高速入口:法円坂・高麗橋入口 |
||
| EV基数 | 3基 | 人荷EV基数 | - |
| 空調タイプ | 個別 | ||
| 備考 | |||

斬新なデザインの外観が特徴のオフィスビル。事務所だけではなく塾、フィットネス、音楽教室などの来店型店舗も入居しており業種の相談も可能です。
- お電話でお問い合わせ(無料)
-
平日13時までのお問い合わせで
当日に物件をご紹介!
お電話の場合「物件番号:J103112」
をお伝えください

