お気に入りを解除しました。
GREEN BOWL UEMACHI(旧第8マツバ)
物件番号:A414106
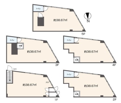
1階~5階58.48坪

- この物件の賃料の価格帯(共益費込)
- 坪@3,000円~@8,000円
| 物件名 | GREEN BOWL UEMACHI(旧第8マツバ) 【このビルのその他の募集階】 |
||
|---|---|---|---|
| 住所 | 大阪府大阪市中央区上町1丁目8番8号 天満橋・谷町・OBP・京橋・ 森之宮でよく検索されるその他の物件 |
||
| 構造(規模) | 鉄筋コンクリート造地上5階建 | ||
| 築年月 | 1975年5月1日 | ||
| 坪数 |
58.48坪 |
||
| 階数 | 1階~5階 | ||
| 保証金 | |||
| 敷金 | 賃料の1カ月分 | ||
| 礼金 | 賃料の3カ月分 | ||
| 沿線 最寄駅 |
地下鉄谷町線 谷町六丁目駅 徒歩5分 (谷町六丁目駅の賃貸事務所) 地下鉄長堀鶴見緑地線 谷町六丁目駅 徒歩5分 (谷町六丁目駅の賃貸事務所) 地下鉄長堀鶴見緑地線 玉造駅 徒歩7分 (玉造駅の賃貸事務所) |
||
| アクセス | 新大阪駅まで電車20分 大阪駅梅田駅まで電車15分 関西空港まで電車57分、車45分 伊丹空港まで車20分 高速入口:環状線法円坂・森之宮入口 |
||
| EV基数 | - | 人荷EV基数 | - |
| 空調タイプ | 個別 | ||
| 備考 | |||
- お電話でお問い合わせ(無料)
-
平日13時までのお問い合わせで
当日に物件をご紹介!
お電話の場合「物件番号:A414106」
をお伝えください

