お気に入りを解除しました。
塩野日生
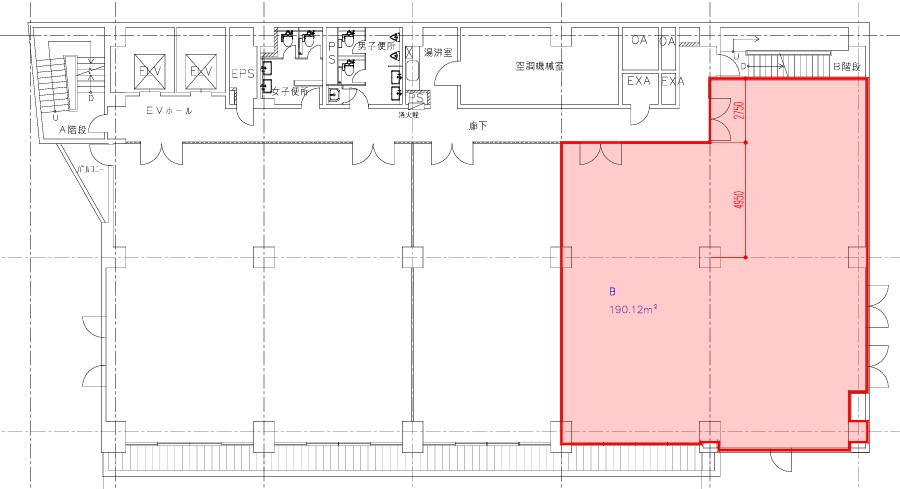
物件番号:A105209
3階57.51坪

- この物件の賃料の価格帯(共益費込)
- この部屋は成約済みです
| 物件名 | 塩野日生 【このビルのその他の募集階】 |
||
|---|---|---|---|
| 住所 | 大阪府大阪市中央区道修町2丁目6番6号 淀屋橋・北浜でよく検索されるその他の物件 |
||
| 構造(規模) | 鉄骨鉄筋コンクリート造地上7階地下1階塔屋2階建 | ||
| 築年月 | 1985年1月1日 | ||
| 坪数 |
57.51坪 |
||
| 階数 | 3階 | ||
| 保証金 | - | ||
| 敷金 | - | ||
| 礼金 | - | ||
| 沿線 最寄駅 |
地下鉄御堂筋線 淀屋橋駅 徒歩4分 (淀屋橋駅の賃貸事務所) 地下鉄堺筋線 北浜駅 徒歩4分 (北浜駅の賃貸事務所) 京阪線(本線・中之島線) 淀屋橋駅 徒歩6分 (淀屋橋駅の賃貸事務所) |
||
| アクセス | 新大阪駅まで電車13分 大阪駅梅田駅まで電車7分 関西空港まで電車54分、車47分 伊丹空港まで車25分 高速入口:環状線高麗橋入口 |
||
| EV基数 | 2基 | 人荷EV基数 | - |
| 空調タイプ | 個別 | ||
| 備考 | ・角ビル・新耐震基準適合 ・2012年空調リニューアル済み ・駐輪場有り |
||

塩野日生ビルは三休橋筋の交差点に面した角地に建ち、視認性が期待できるビルです。信用ある大手保険会社所有のハイグレードオフィスで新耐震基準です。御堂筋と堺筋のちょうど中間あたりに位置し、大阪メトロ堺筋線・御堂筋線、京阪線の3線利用可能でアクセス至便です。
- お電話でお問い合わせ(無料)
-
平日13時までのお問い合わせで
当日に物件をご紹介!
お電話の場合「物件番号:A105209」
をお伝えください

