お気に入りを解除しました。
ミラータワー
物件番号:A108225
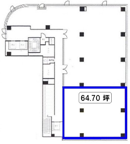
8階64.7坪

- この物件の賃料の価格帯(共益費込)
- 坪@12,001円~@15,000円
| 物件名 | ミラータワー 【このビルのその他の募集階】 |
||
|---|---|---|---|
| 住所 | 大阪府大阪市中央区瓦町2丁目6番6号 淀屋橋・北浜・本町・堺筋本町でよく検索されるその他の物件 |
||
| 構造(規模) | 鉄骨造地下1階地上9階建 | ||
| 築年月 | 1991年4月1日 | ||
| 坪数 |
64.7坪 |
||
| 階数 | 8階 | ||
| 保証金 | |||
| 敷金 | 賃料の12カ月分 | ||
| 礼金 | - | ||
| 沿線 最寄駅 |
地下鉄堺筋線 堺筋本町駅 徒歩5分 (堺筋本町駅の賃貸事務所) 地下鉄中央線 堺筋本町駅 徒歩6分 (堺筋本町駅の賃貸事務所) 地下鉄御堂筋線 本町駅 徒歩6分 (本町駅の賃貸事務所) |
||
| アクセス | 新大阪駅まで電車17分 大阪駅梅田駅まで電車11分 関西空港まで電車52分、車48分 伊丹空港まで車22分 高速入口:環状線高麗橋入口 |
||
| EV基数 | 2基 | 人荷EV基数 | 1基 |
| 空調タイプ | 個別 | ||
| 備考 | ・角ビル ・新耐震基準適合 ・エレベーター3基 ・天井高2.64m ・駐輪場 |
||

三休橋筋の交差点角に立つ存在感があるビル。ガラスウォールのアール状の外観が目を引きます。1階は受付サービスがあり、セールスもシャットアウトできるので業務に支障をきたしません。本町エリアの複数線・複数駅の利用が可能ですのでアクセスも抜群です。
- お電話でお問い合わせ(無料)
-
平日13時までのお問い合わせで
当日に物件をご紹介!
お電話の場合「物件番号:A108225」
をお伝えください
