お気に入りを解除しました。
大和本町
物件番号:A111416
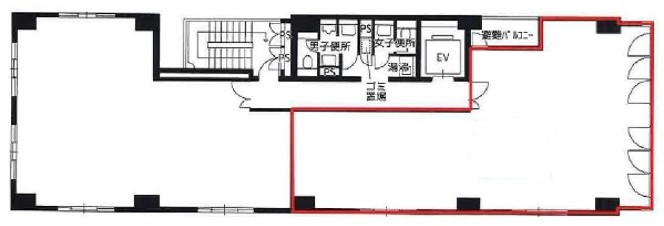
2階18.45坪

- この物件の賃料の価格帯(共益費込)
- この部屋は成約済みです
| 物件名 | 大和本町 【このビルのその他の募集階】 |
||
|---|---|---|---|
| 住所 | 大阪府大阪市中央区本町4丁目5番3号 本町・堺筋本町でよく検索されるその他の物件 |
||
| 構造(規模) | 鉄骨鉄筋コンクリート・鉄筋コンクリート造地上8階建 | ||
| 築年月 | 1986年10月1日 | ||
| 坪数 |
18.45坪 |
||
| 階数 | 2階 | ||
| 保証金 | - | ||
| 敷金 | - | ||
| 礼金 | - | ||
| 沿線 最寄駅 |
地下鉄御堂筋線 本町駅 徒歩2分 (本町駅の賃貸事務所) 地下鉄中央線 本町駅 徒歩2分 (本町駅の賃貸事務所) 地下鉄四つ橋線 本町駅 徒歩3分 (本町駅の賃貸事務所) |
||
| アクセス | 新大阪駅まで電車19分 大阪駅梅田駅まで電車13分 関西空港まで電車48分、車51分 伊丹空港まで車25分 高速入口:環状線信濃橋・阿波座入口 |
||
| EV基数 | 1基 | 人荷EV基数 | - |
| 空調タイプ | 個別 | ||
| 備考 | |||

大和本町ビルは大阪メトロ御堂筋線「本町駅」から徒歩2分の新耐震基準のビルです。 外観はベージュのタイルが特徴的で、ガラス張りのエントランスに加え、鏡面加工された案内板が来訪者に非常に明るい印象を与えます。
- お電話でお問い合わせ(無料)
-
平日13時までのお問い合わせで
当日に物件をご紹介!
お電話の場合「物件番号:A111416」
をお伝えください
