お気に入りを解除しました。
御堂筋三都
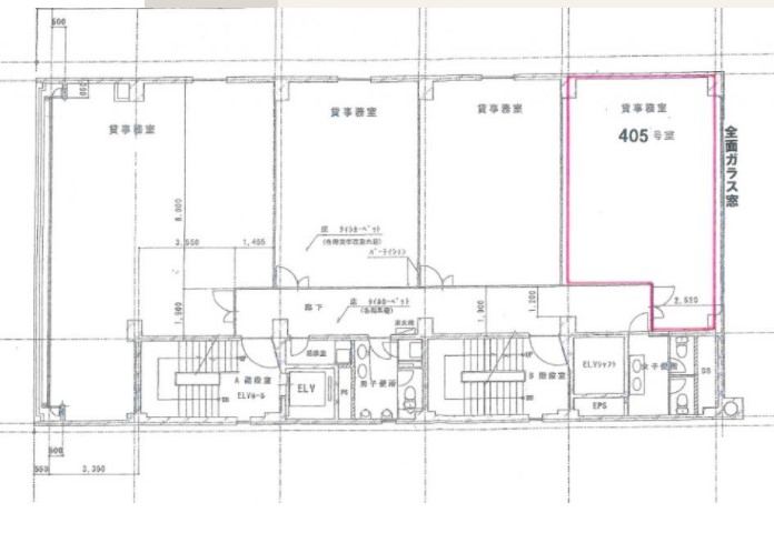
物件番号:A204311
4階15.64坪

- この物件の賃料の価格帯(共益費込)
- 坪@8,001円~@12,000円
| 物件名 | 御堂筋三都 【このビルのその他の募集階】 |
||
|---|---|---|---|
| 住所 | 大阪府大阪市中央区博労町3丁目6番7号 本町・堺筋本町・心斎橋・長堀橋でよく検索されるその他の物件 |
||
| 構造(規模) | 鉄筋コンクリート造地上6階建 | ||
| 築年月 | 1970年8月 | ||
| 坪数 |
15.64坪 |
||
| 階数 | 4階 | ||
| 保証金 | |||
| 敷金 | - | ||
| 礼金 | 相談 | ||
| 沿線 最寄駅 |
地下鉄御堂筋線 心斎橋駅 徒歩5分 (心斎橋駅の賃貸事務所) 地下鉄長堀鶴見緑地線 心斎橋駅 徒歩5分 (心斎橋駅の賃貸事務所) 地下鉄御堂筋線 本町駅 徒歩6分 (本町駅の賃貸事務所) |
||
| アクセス | 新大阪駅まで電車15分 大阪駅梅田駅まで電車9分 関西空港まで電車51分、車46分 伊丹空港まで車22分 高速入口:環状線信濃橋・阿波座・長堀 入口 |
||
| EV基数 | 1基 | 人荷EV基数 | - |
| 空調タイプ | 個別 | ||
| 備考 | |||

御堂筋から東に少し入ったところに立地するオフィスビル。管理がしっかりとされており、エントランスや共用部など清潔感が感じられます。1階には革製品を扱う老舗ショップが入居中。心斎橋筋商店街も隣接しており、雨の日には商店街のアーケードを通れば駅までのアクセスが楽ラクです。
- お電話でお問い合わせ(無料)
-
平日13時までのお問い合わせで
当日に物件をご紹介!
お電話の場合「物件番号:A204311」
をお伝えください
