お気に入りを解除しました。
メットライフ本町スクエア
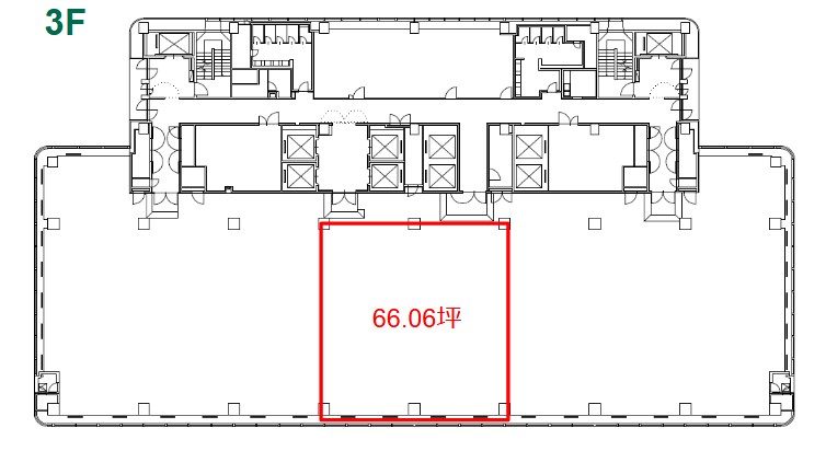
物件番号:A111211
3階66.06坪

- この物件の賃料の価格帯(共益費込)
- この部屋は成約済みです
| 物件名 | メットライフ本町スクエア 【このビルのその他の募集階】 |
||
|---|---|---|---|
| 住所 | 大阪府大阪市中央区本町2丁目5番7号 でよく検索されるその他の物件 |
||
| 構造(規模) | 鉄骨・鉄骨鉄筋コンクリート造地上19階地下3階建 | ||
| 築年月 | 1984年1月1日 | ||
| 坪数 |
66.06坪 |
||
| 階数 | 3階 | ||
| 保証金 | - | ||
| 敷金 | - | ||
| 礼金 | - | ||
| 沿線 最寄駅 |
地下鉄堺筋線 堺筋本町駅 徒歩1分 (堺筋本町駅の賃貸事務所) 地下鉄中央線 堺筋本町駅 徒歩3分 (堺筋本町駅の賃貸事務所) 地下鉄御堂筋線 本町駅 徒歩4分 (本町駅の賃貸事務所) |
||
| アクセス | 新大阪駅まで電車18分 大阪駅梅田駅まで電車12分 関西空港まで電車50分、車48分 伊丹空港まで車20分 高速入口:環状線高麗橋・信濃橋・阿波座入口 |
||
| EV基数 | 8基 | 人荷EV基数 | 2基 |
| 空調タイプ | 個別 | ||
| 備考 | |||

旧大阪丸紅ビル。2015年に所有者変更となり、現在のビル名となりました。基準階面積は370坪を超える本町の大型シンボリックビルです。公開空地の造りや、高級感・開放感のあるエントランスなどハイグレードなオフィスビルであるということを感じさせます。
- お電話でお問い合わせ(無料)
-
平日13時までのお問い合わせで
当日に物件をご紹介!
お電話の場合「物件番号:A111211」
をお伝えください
類似物件のご紹介
BEARE本町BLDG.(旧Hommachi bldg)
-
-
住所 大阪府大阪市中央区本町2丁目6番5号 交通 地下鉄御堂筋線 本町駅 徒歩5分
地下鉄四つ橋線 本町駅 徒歩5分
地下鉄堺筋線 堺筋本町駅 徒歩5分
竣工 1989年3月 構造 鉄骨鉄造地上8階地下1階建
BEARE本町BLDG.(旧Hommachi bldg)
-
-
住所 大阪府大阪市中央区本町2丁目6番5号 交通 地下鉄御堂筋線 本町駅 徒歩5分
地下鉄四つ橋線 本町駅 徒歩5分
地下鉄堺筋線 堺筋本町駅 徒歩5分
竣工 1989年3月 構造 鉄骨鉄造地上8階地下1階建
